イチマルホーム

イチマルホーム

優しい接客が想いを汲み取り、「デザイン×性能」にこだわる家づくり
お気に入りに追加する
【36.5坪/間取り図有】こだわり造作家具と収納力のある和モダンの家
イチマルホーム 【36.5坪/間取り図有】こだわり造作家具と収納力のある和モダンの家の建築実例画像1
  • 本体価格
    -
  • 延床面積
    120.90m2 (36.5坪)
    敷地面積
    -
    家族構成
    夫婦+子ども2人
  • 竣工年月
    -
    工法
    木造軸組
この会社をもっと知りたくなったら
無料でお届け!まずはカタログ請求

施主のこだわり

和モダンな雰囲気に収納力も充実した造作家具にこだわった家

和モダンなデザインにこだわりのあったお施主様の想いが詰まった家が実現した。随所に和の要素を取り入れつつも、現代的なスタイルを取り入れた和モダンスタイルになっており、外観の落ち着いた雰囲気や内観の細部にもそのこだわりが垣間見える。こだわりの造作家具を多く採用していて、オーダーメイドの家具によって、空間のフィット感が高まり、機能性とデザイン性を兼ね備えた空間が演出されている。デザイン面のみならず、収納力も高く、様々な場所に多数の収納スペースが設けられており、無… 続きを読む

和モダンなデザインにこだわりのあったお施主様の想いが詰まった家が実現した。随所に和の要素を取り入れつつも、現代的なスタイルを取り入れた和モダンスタイルになっており、外観の落ち着いた雰囲気や内観の細部にもそのこだわりが垣間見える。こだわりの造作家具を多く採用していて、オーダーメイドの家具によって、空間のフィット感が高まり、機能性とデザイン性を兼ね備えた空間が演出されている。デザイン面のみならず、収納力も高く、様々な場所に多数の収納スペースが設けられており、無駄のない使い勝手の良い使用で同社の施工技術でお施主様のイメージを再現した。現代的なライフスタイルに合わせた和モダンスタイルでありながら、機能的でデザイン性の高い住まいになっている

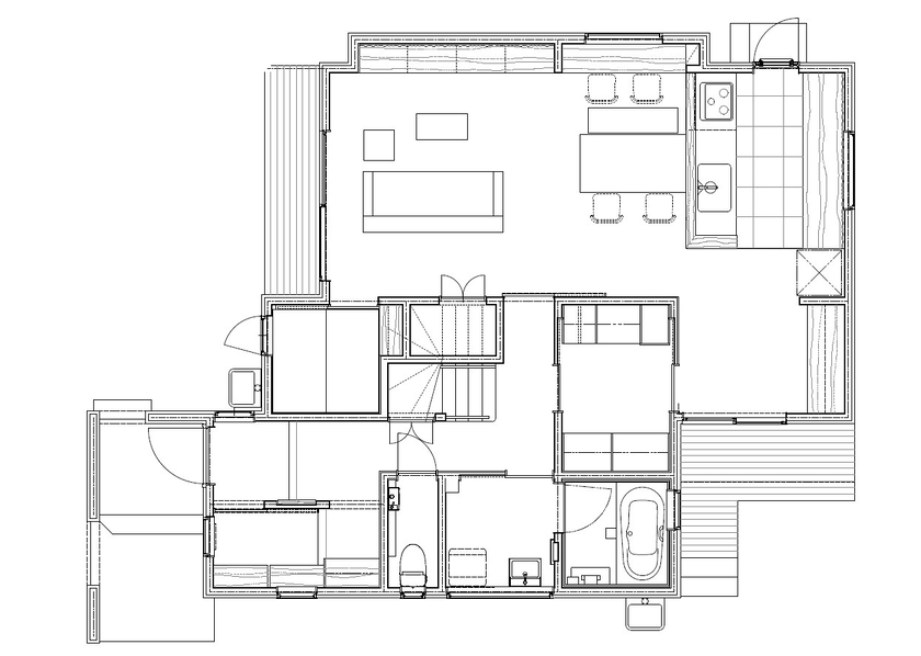
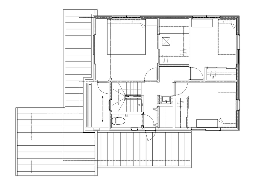
間取り図(3LDK)

1階
イチマルホーム 【36.5坪/間取り図有】こだわり造作家具と収納力のある和モダンの家の間取り図(3LDK)1階
2階
イチマルホーム 【36.5坪/間取り図有】こだわり造作家具と収納力のある和モダンの家の間取り図(3LDK)2階
この会社をもっと知りたくなったら
無料でお届け!まずはカタログ請求

内外観ギャラリー

この会社をもっと知りたくなったら
無料でお届け!まずはカタログ請求

この会社の他の建築実例を見る

この建築実例が気になった方へおすすめ

この建築実例の詳細情報

この建築実例を建てた店舗情報

住所 岡山県赤磐市河本910-1
問い合わせ
086-206-5009
  • ※営業時間内の対応となります。

  • ※お問い合わせの際は「SUUMO(スーモ)を見て」とお伝え下さい。

ホームページ この会社のホームページへ

イチマルホームのコンテンツ一覧

お問い合わせ

カタログをもらう
施工実例集
イチマルホームのカタログ(建築実例集)
建築実例集
問合コード:1439170001

この会社が気になったら

カタログをもらう
施工実例集
イチマルホームのカタログ(建築実例集)
建築実例集
問合コード:1439170001

関連キーワード

この建築実例のその他の特徴
4人家族  |  和風モダン  |  おしゃれ  |  かわいい  |  開放感  |  子供部屋  |  ニッチ  |  窓が多い  |  車庫
ページトップへ戻る