【2000~2499万円/間取図有/スキップフロア/ダウンフロアリビング】どこにいても家族がつながる理想の家
-
本体価格
2,000万円~2,499万円
(70.2万円~87.7万円/坪)
-
-
工法
その他(独自認定工法等)(テクノストラクチャー工法)
施主Nさんのこだわり
「住宅ローンを定年前に終わらせたい」と考えていた20代のNさんは、子どもの誕生に合わせて注文住宅を検討し始めた。イベント会場で出会った同社の営業担当は、どんな施工の家でどんな暮らしができるか、わかりやすく熱心に説明してくれた。「何度も丁寧に対応してくれる姿勢に好印象を抱き、お任せすることにしました。家への理想やこだわりが強かったので打ち合わせ回数も多かったけれど、最後まで全力でサポートしていただきました。最初に伝えた希望のほとんどが形になり、しない方がいい…
続きを読む
「住宅ローンを定年前に終わらせたい」と考えていた20代のNさんは、子どもの誕生に合わせて注文住宅を検討し始めた。イベント会場で出会った同社の営業担当は、どんな施工の家でどんな暮らしができるか、わかりやすく熱心に説明してくれた。「何度も丁寧に対応してくれる姿勢に好印象を抱き、お任せすることにしました。家への理想やこだわりが強かったので打ち合わせ回数も多かったけれど、最後まで全力でサポートしていただきました。最初に伝えた希望のほとんどが形になり、しない方がいいことはきちんと説明してもらえるなど、信頼感が大きかったです」とNさん。そうして完成したのは、「天井が高くて広々と感じる、遊び心と工夫をちりばめた、コンパクトな家」。床に段差をつけて空間にメリハリをつけた、Nさんこだわりの「ダウンフロアリビング」は特にお気に入り。さらに階段の途中に設けたスキップフロアや、リビングのワークスペースなど、可愛い盛りの子どもたちがのびのびと遊んだり楽しく学べる工夫をちりばめた。「雨の日もおうち時間を満喫できるようになり、子どもたちが親の目の届くところで過ごせるのですごく安心です。これから友達を呼んでのホームパーティやバーベキューなど、楽しみが広がりますね」と、家族の充実したマイホームライフを語ってくれた。
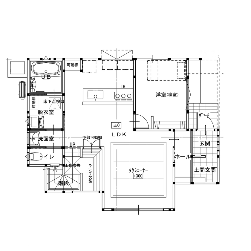
間取り図(3LDK)
内外観ギャラリー
-
床から一段下げたダウンフロアリビングは、Nさんがぜひ作りたかったこだわりの空間。床に腰かけられるタタミスペース…
続きを読む
床から一段下げたダウンフロアリビングは、Nさんがぜひ作りたかったこだわりの空間。床に腰かけられるタタミスペースは、家族がいつも集まる場所に
-
階段の途中に設けた「スキップフロア」。L字型のカウンターも造作し、親子で本を読んだり勉強したりとフレキシブルに…
続きを読む
階段の途中に設けた「スキップフロア」。L字型のカウンターも造作し、親子で本を読んだり勉強したりとフレキシブルに使える空間となっている
-
木の天井から下がる白と黒のライトが豊かな表情を見せるキッチン。背面のカウンターとキッチンカウンターは、料理や片…
続きを読む
木の天井から下がる白と黒のライトが豊かな表情を見せるキッチン。背面のカウンターとキッチンカウンターは、料理や片付けがしやすいよう、程よい距離を保っている
-
セキュリティ的に安心できるカメラ付きのインターホンや空調の調節器も、おしゃれな雰囲気。白い壁をくりぬいた形の棚…
続きを読む
セキュリティ的に安心できるカメラ付きのインターホンや空調の調節器も、おしゃれな雰囲気。白い壁をくりぬいた形の棚は、飾りスペースとして活用
-
ダイニングに面したキッチンや洗面室、脱衣室、バスルームはスムーズに移動できるよう、家事ラク動線に配慮した間取り…
続きを読む
ダイニングに面したキッチンや洗面室、脱衣室、バスルームはスムーズに移動できるよう、家事ラク動線に配慮した間取りになっている
-
1階洋室の扉から子どもが「こんにちは」と笑顔。明るい色の木をたくさん使ったフローリングは素足で歩いても気持ちよ…
続きを読む
1階洋室の扉から子どもが「こんにちは」と笑顔。明るい色の木をたくさん使ったフローリングは素足で歩いても気持ちよく、おうち時間が楽しくなるポイントの一つ
-
キッチンから階段を一望でき、スキップフロアにいる家族と目線を合わせられる。階段には窓があり、射しこむ光と吹き抜…
続きを読む
キッチンから階段を一望でき、スキップフロアにいる家族と目線を合わせられる。階段には窓があり、射しこむ光と吹き抜けの開放感を楽しめるのも魅力だ
-
階段の吹き抜けで目を惹くのは、星をデザインしたキュートなペンダントライト。24時間換気システムのおかげで、きれ…
続きを読む
階段の吹き抜けで目を惹くのは、星をデザインしたキュートなペンダントライト。24時間換気システムのおかげで、きれいな空気と光を感じる家になっている
-
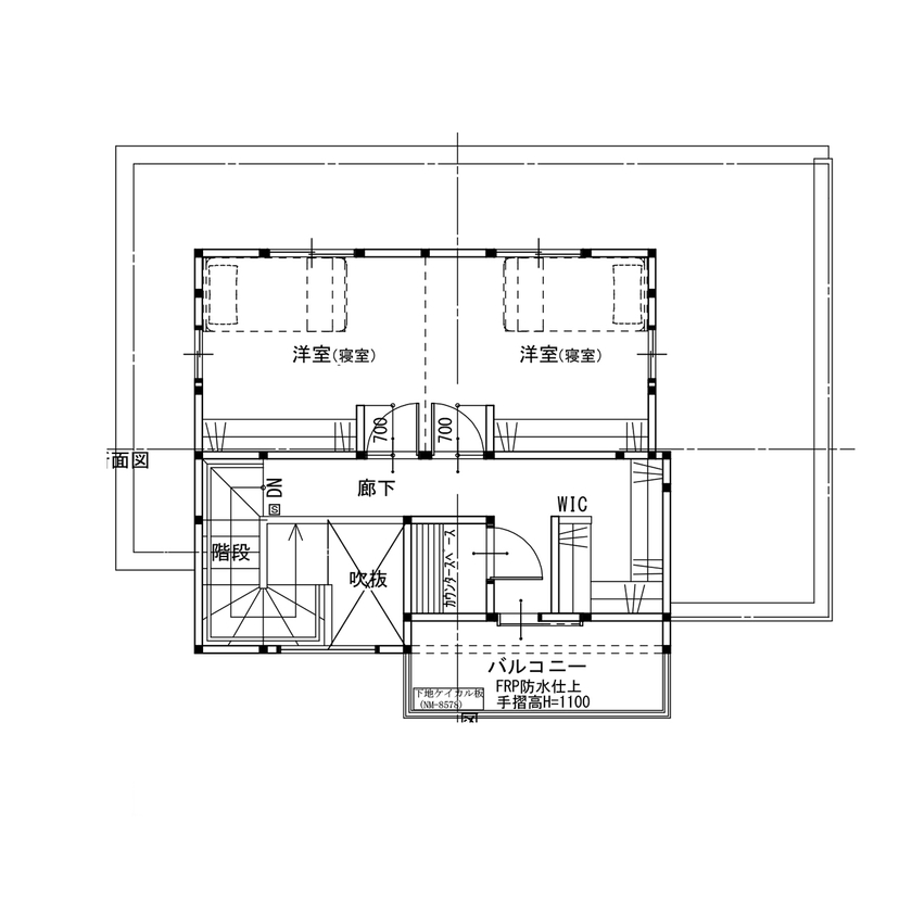
2階の子ども部屋は将来2つに区切ることも可能。クローゼットの壁紙のデザインをあえて変え、木目と白で柔らかい印象…
続きを読む
2階の子ども部屋は将来2つに区切ることも可能。クローゼットの壁紙のデザインをあえて変え、木目と白で柔らかい印象の空間に、きりっとしたメリハリを付けた
-
木の温かみに包まれる家は、幼い子どもがいるNさんにとって理想の空間。玄関ホールは広めにとっているため、靴などが…
続きを読む
木の温かみに包まれる家は、幼い子どもがいるNさんにとって理想の空間。玄関ホールは広めにとっているため、靴などが整理できていつもすっきり
この会社の他の建築実例を見る
-
-
-
延床面積
-
-
所在地
岡山県倉敷市片島町969-3
-
営業時間
9:00~18:00(定休日:水曜日)
-
【完成見学会/随時開催】実例の完成見学会を随時開催しております。是非、見て触れてご体感ください。
-
キャンペーン情報
-
設計・資金相談会
-
完成見学会
-
土地相談会
開催日
随時開催中!完全予約制のため、予約フォームからお問い合わせください。
参加特典
新規のお客様限定★ QUOカード1000円分プレゼント!
この建築実例の詳細情報
|
商品名
|
-
|
|
部材・設備
|
-
|
|
延床面積
|
94.28m2
(28.5坪)
|
|
敷地面積
|
194.10m2
(58.7坪)
|
|
工法
|
その他(独自認定工法等)(テクノストラクチャー工法)
|
|
本体価格
|
2,000万円~2,499万円
|
|
竣工年月
|
2019年12月
|
この建築実例を建てた店舗情報
倉敷ハウジング(パナソニックビルダーズグループ)のコンテンツ一覧