プラネットホーム

プラネットホーム

認定長期優良住宅を標準化した家計にも環境にも優しい住まいづくり
お気に入りに追加する
新潟県燕市  Iさん
くつろぎを演出するホテルライクモダン住宅
プラネットホーム くつろぎを演出するホテルライクモダン住宅の建築実例画像1
  • 本体価格
    1,708万円
    52.2万円/坪
  • 延床面積
    108.25m2 (32.7坪)
    敷地面積
    -
    家族構成
    -
  • 竣工年月
    -
    工法
    木造軸組
この会社をもっと知りたくなったら
無料でお届け!まずはカタログ請求

施主Iさんのこだわり

家事がしやすい使い勝手のいい間取りのお家

スタンダードな3LDKだが階段下収納、パントリー、家事室やサンルームといった家事周りに使うものをキッチン周辺に固めたため家事がしやすい使い勝手のいい間取りになっている。インテリアはホテル調をイメージした落ち着いた色やデザインでまとめて高級感を感じる落ち着いたコーディネートになっている

スタンダードな3LDKだが階段下収納、パントリー、家事室やサンルームといった家事周りに使うものをキッチン周辺に固めたため家事がしやすい使い勝手のいい間取りになっている。インテリアはホテル調をイメージした落ち着いた色やデザインでまとめて高級感を感じる落ち着いたコーディネートになっている

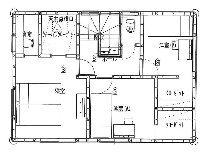
間取り図(3LDK)

1階
プラネットホーム くつろぎを演出するホテルライクモダン住宅の間取り図(3LDK)1階
2階
プラネットホーム くつろぎを演出するホテルライクモダン住宅の間取り図(3LDK)2階
この会社をもっと知りたくなったら
無料でお届け!まずはカタログ請求

内外観ギャラリー

この会社をもっと知りたくなったら
無料でお届け!まずはカタログ請求

この会社の他の建築実例を見る

この建築実例が気になった方へおすすめ

この建築実例の詳細情報

この建築実例を建てた店舗情報

住所 新潟県新潟市西蒲区曽根1234
問い合わせ
0256-88-6286
  • ※営業時間内の対応となります。

  • ※お問い合わせの際は「SUUMO(スーモ)を見て」とお伝え下さい。

ホームページ この会社のホームページへ

プラネットホームのコンテンツ一覧

お問い合わせ

カタログをもらう
商品別カタログ
プラネットホームのカタログ(すばる君ぱっくカタログ)
すばる君ぱっくカタログ
問合コード:1333840001
お問い合わせ先
0256-88-6286
  • ※営業時間内の対応となります。

  • ※お問い合わせの際は「SUUMO(スーモ)を見て」とお伝え下さい。

  • 新潟県新潟市西蒲区曽根1234

  • 定休日:水曜日

この会社のホームページへ

この会社が気になったら

カタログをもらう
商品別カタログ
プラネットホームのカタログ(すばる君ぱっくカタログ)
すばる君ぱっくカタログ
問合コード:1333840001

関連キーワード

この建築実例のその他の特徴
ページトップへ戻る