アサヒアレックス

アサヒアレックス

お客様の暮らしのすべてを心でささえ、「心あたたまる幸せな暮らし」をご提供
お気に入りに追加する
新しい暮らしを彩る、本物の性能と上質なデザイン
アサヒアレックス 新しい暮らしを彩る、本物の性能と上質なデザインの建築実例画像1
  • 本体価格
    2,160万円
    58.7万円/坪
  • 延床面積
    121.71m2 (36.8坪)
    敷地面積
    276.49m2 (83.6坪)
    家族構成
    -
  • 竣工年月
    2020年5月
    工法
    木造軸組
この会社をもっと知りたくなったら
無料でお届け!まずはカタログ請求

施主のこだわり

モノトーン×無垢のシンプルモダン

吹き抜けとLDKが一つ空間として繋がるような、一体感がポイント。異素材が演出するモダンで上品なデザインは、視覚的美しさだけでなく最高の居心地を与えてくれる。

吹き抜けとLDKが一つ空間として繋がるような、一体感がポイント。異素材が演出するモダンで上品なデザインは、視覚的美しさだけでなく最高の居心地を与えてくれる。

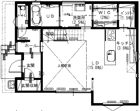
間取り図(3LDK)

1階
アサヒアレックス 新しい暮らしを彩る、本物の性能と上質なデザインの間取り図(3LDK)1階
2階
アサヒアレックス 新しい暮らしを彩る、本物の性能と上質なデザインの間取り図(3LDK)2階
この会社をもっと知りたくなったら
無料でお届け!まずはカタログ請求

内外観ギャラリー

この会社をもっと知りたくなったら
無料でお届け!まずはカタログ請求

この会社の他の建築実例を見る

この建築実例が気になった方へおすすめ

この建築実例の詳細情報

この建築実例を建てた店舗情報

住所 新潟県新潟市中央区美咲町1-9-48
問い合わせ
025-285-1112
  • ※営業時間内の対応となります。

  • ※お問い合わせの際は「SUUMO(スーモ)を見て」とお伝え下さい。

ホームページ この会社のホームページへ

アサヒアレックスのコンテンツ一覧

お問い合わせ

カタログをもらう
総合カタログ
アサヒアレックスのカタログ(アサヒアレックス プロミスブック)
アサヒアレックス プロミスブック
問合コード:1050670002
お問い合わせ先
025-285-1112
  • ※営業時間内の対応となります。

  • ※お問い合わせの際は「SUUMO(スーモ)を見て」とお伝え下さい。

  • 新潟県新潟市中央区美咲町1-9-48

  • 定休日:水曜・木曜

この会社のホームページへ

この会社が気になったら

カタログをもらう
総合カタログ
アサヒアレックスのカタログ(アサヒアレックス プロミスブック)
アサヒアレックス プロミスブック
問合コード:1050670002

関連キーワード

この建築実例のその他の特徴
ページトップへ戻る