アサヒアレックス

アサヒアレックス

お客様の暮らしのすべてを心でささえ、「心あたたまる幸せな暮らし」をご提供
お気に入りに追加する
宮城県仙台市若林区  Mさん
2Fリビングと9帖バルコニーで過ごすリゾート空間
アサヒアレックス  2Fリビングと9帖バルコニーで過ごすリゾート空間の建築実例画像1
  • 本体価格
    2,270万円
    66.7万円/坪
  • 延床面積
    112.61m2 (34.0坪)
    敷地面積
    144.58m2 (43.7坪)
    家族構成
    -
  • 竣工年月
    2020年2月
    工法
    木造軸組
この会社をもっと知りたくなったら
無料でお届け!まずはカタログ請求

施主Mさんのこだわり

UA値0.3台で叶えるまるでリゾートのような心地良さ

まるでリゾートで過ごすような、わくわくと癒しが同居する家。1Fの居室空間ではプライベートをしっかり確保。2FのLDKには贅沢な9帖バルコニーも。家にいながらリゾート気分を味わえるアウトドアリビング。

まるでリゾートで過ごすような、わくわくと癒しが同居する家。1Fの居室空間ではプライベートをしっかり確保。2FのLDKには贅沢な9帖バルコニーも。家にいながらリゾート気分を味わえるアウトドアリビング。

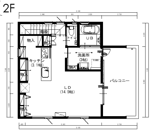
間取り図(3LDK)

1階
アサヒアレックス  2Fリビングと9帖バルコニーで過ごすリゾート空間の間取り図(3LDK)1階
2階
アサヒアレックス  2Fリビングと9帖バルコニーで過ごすリゾート空間の間取り図(3LDK)2階
この会社をもっと知りたくなったら
無料でお届け!まずはカタログ請求

内外観ギャラリー

この会社をもっと知りたくなったら
無料でお届け!まずはカタログ請求

この会社の他の建築実例を見る

この建築実例が気になった方へおすすめ

この建築実例の詳細情報

この建築実例を建てた店舗情報

住所 新潟県新潟市中央区美咲町1-9-48
問い合わせ
025-285-1112
  • ※営業時間内の対応となります。

  • ※お問い合わせの際は「SUUMO(スーモ)を見て」とお伝え下さい。

ホームページ この会社のホームページへ

アサヒアレックスのコンテンツ一覧

お問い合わせ

カタログをもらう
総合カタログ
アサヒアレックスのカタログ(アサヒアレックス プロミスブック)
アサヒアレックス プロミスブック
問合コード:1050670002
お問い合わせ先
025-285-1112
  • ※営業時間内の対応となります。

  • ※お問い合わせの際は「SUUMO(スーモ)を見て」とお伝え下さい。

  • 新潟県新潟市中央区美咲町1-9-48

  • 定休日:水曜・木曜

この会社のホームページへ

この会社が気になったら

カタログをもらう
総合カタログ
アサヒアレックスのカタログ(アサヒアレックス プロミスブック)
アサヒアレックス プロミスブック
問合コード:1050670002

関連キーワード

この建築実例のその他の特徴
ページトップへ戻る