アサヒアレックス

アサヒアレックス

お客様の暮らしのすべてを心でささえ、「心あたたまる幸せな暮らし」をご提供
お気に入りに追加する
宮城県仙台市青葉区  Oさん
【本体価格2350万円】家族の日常が、少し特別になる。くつろぎとデザインがちょうどいいLDK
アサヒアレックス 【本体価格2350万円】家族の日常が、少し特別になる。くつろぎとデザインがちょうどいいLDKの建築実例画像1
  • 本体価格
    2,350万円
    65.4万円/坪
  • 延床面積
    118.82m2 (35.9坪)
    敷地面積
    328.28m2 (99.3坪)
    家族構成
    -
  • 竣工年月
    2013年10月
    工法
    木造軸組
この会社をもっと知りたくなったら
無料でお届け!まずはカタログ請求

施主Oさんのこだわり

目にとまるのは洗練された美しいデザイン

アサヒアレックスの家で目にとまるのは洗練された美しいデザイン。誰もが憧れるような北欧風のデザインや、天然木の質感に包まれた居心地のよさそうな空間造りに、そのデザイン性の高さがうかがえる。施主ごと一からプランニングされる住まいは、一邸一邸が異なるデザインながら、どの住まいにも共通の美しさがある。その家造りをサポートし、理想の住まいを実現させるのが、同社の若いスタッフ達だ。家造りを検討する世代と年齢が近く、親身に要望を聞きながら、質の高いデザインも提供してくれ… 続きを読む

アサヒアレックスの家で目にとまるのは洗練された美しいデザイン。誰もが憧れるような北欧風のデザインや、天然木の質感に包まれた居心地のよさそうな空間造りに、そのデザイン性の高さがうかがえる。施主ごと一からプランニングされる住まいは、一邸一邸が異なるデザインながら、どの住まいにも共通の美しさがある。その家造りをサポートし、理想の住まいを実現させるのが、同社の若いスタッフ達だ。家造りを検討する世代と年齢が近く、親身に要望を聞きながら、質の高いデザインも提供してくれる。

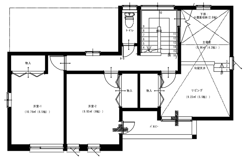
間取り図(3LDK)

1階
アサヒアレックス 【本体価格2350万円】家族の日常が、少し特別になる。くつろぎとデザインがちょうどいいLDKの間取り図(3LDK)1階
2階
アサヒアレックス 【本体価格2350万円】家族の日常が、少し特別になる。くつろぎとデザインがちょうどいいLDKの間取り図(3LDK)2階
この会社をもっと知りたくなったら
無料でお届け!まずはカタログ請求

内外観ギャラリー

この会社をもっと知りたくなったら
無料でお届け!まずはカタログ請求

この会社の他の建築実例を見る

この建築実例が気になった方へおすすめ

この建築実例の詳細情報

この建築実例を建てた店舗情報

住所 新潟県新潟市中央区美咲町1-9-48
問い合わせ
025-285-1112
  • ※営業時間内の対応となります。

  • ※お問い合わせの際は「SUUMO(スーモ)を見て」とお伝え下さい。

ホームページ この会社のホームページへ

アサヒアレックスのコンテンツ一覧

お問い合わせ

カタログをもらう
総合カタログ
アサヒアレックスのカタログ(アサヒアレックス プロミスブック)
アサヒアレックス プロミスブック
問合コード:1050670002
お問い合わせ先
025-285-1112
  • ※営業時間内の対応となります。

  • ※お問い合わせの際は「SUUMO(スーモ)を見て」とお伝え下さい。

  • 新潟県新潟市中央区美咲町1-9-48

  • 定休日:水曜・木曜

この会社のホームページへ

この会社が気になったら

カタログをもらう
総合カタログ
アサヒアレックスのカタログ(アサヒアレックス プロミスブック)
アサヒアレックス プロミスブック
問合コード:1050670002

関連キーワード

ページトップへ戻る