アンドクリエイト

アンドクリエイト

あなたの夢+αの住まいづくりをご提案いたします
お気に入りに追加する
新潟県新潟市西区  Kさん
開放感と落ち着きを追求した、高級感溢れる住まい
アンドクリエイト 開放感と落ち着きを追求した、高級感溢れる住まいの建築実例画像1
  • 本体価格
    2,000万円2,499万円
    60.2万円75.2万円/坪
  • 延床面積
    109.92m2 (33.2坪)
    敷地面積
    188.56m2 (57.0坪)
    家族構成
    夫婦+子ども2人
  • 竣工年月
    2021年7月
    工法
    木造軸組
この会社をもっと知りたくなったら
無料でお届け!まずはカタログ請求

施主Kさんのこだわり

生活しやすい便利な動線+光が注ぐ明るい空間

「家事がラクな動線で明るい家にしてほしい。」とシンプルな要望から家づくりを始めたご夫婦。玄関~キッチン~洗面スペースまでの繋がりを大切にした“家事ラク動線”が見事に実現した。将来子どもと一緒に料理を作れるようキッチンの幅は広めにしたり子どもたちが勉強するスペースはキッチンから目の届く範囲に配置したり、家族のコミュニケーションが取りやすい空間を提案。キッチン前の光が降り注ぐ畳コーナーは家族全員のお気に入りの場所だ。なるべく1階で生活が完結できるように考えて設… 続きを読む

「家事がラクな動線で明るい家にしてほしい。」とシンプルな要望から家づくりを始めたご夫婦。玄関~キッチン~洗面スペースまでの繋がりを大切にした“家事ラク動線”が見事に実現した。将来子どもと一緒に料理を作れるようキッチンの幅は広めにしたり子どもたちが勉強するスペースはキッチンから目の届く範囲に配置したり、家族のコミュニケーションが取りやすい空間を提案。キッチン前の光が降り注ぐ畳コーナーは家族全員のお気に入りの場所だ。なるべく1階で生活が完結できるように考えて設計された住まいになっている

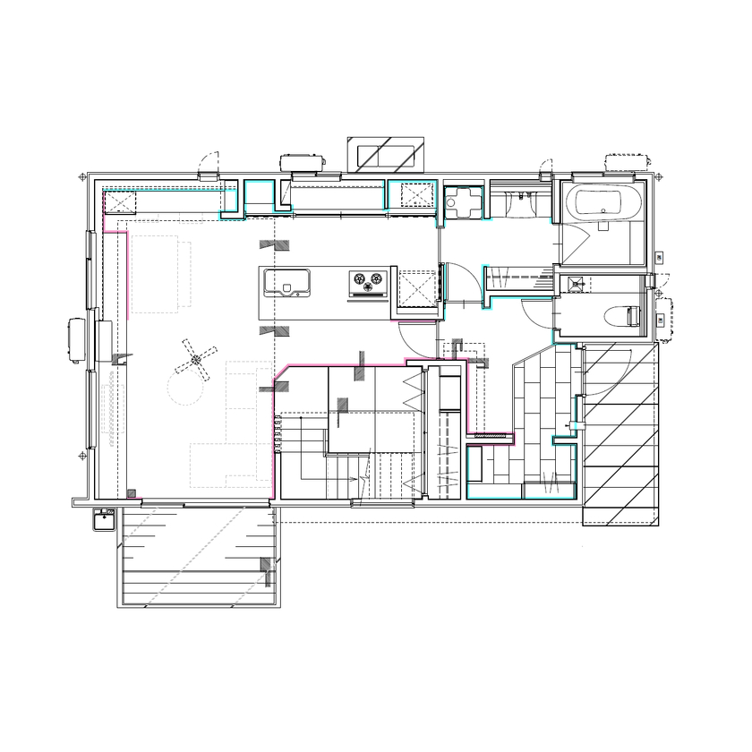
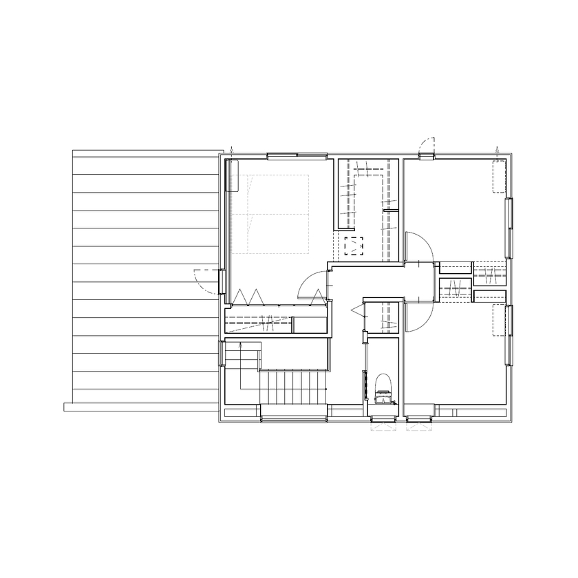
間取り図(3LDK)

1階
アンドクリエイト 開放感と落ち着きを追求した、高級感溢れる住まいの間取り図(3LDK)1階
2階
アンドクリエイト 開放感と落ち着きを追求した、高級感溢れる住まいの間取り図(3LDK)2階
この会社をもっと知りたくなったら
無料でお届け!まずはカタログ請求

内外観ギャラリー

この会社をもっと知りたくなったら
無料でお届け!まずはカタログ請求

この会社の他の建築実例を見る

この建築実例が気になった方へおすすめ

この建築実例の詳細情報

この建築実例を建てた店舗情報

住所 新潟県新潟市中央区湖南5-4
問い合わせ
0800-800-7070
  • ※営業時間内の対応となります。

  • ※お問い合わせの際は「SUUMO(スーモ)を見て」とお伝え下さい。

ホームページ この会社のホームページへ

アンドクリエイトのコンテンツ一覧

お問い合わせ

カタログをもらう
総合カタログ
アンドクリエイトのカタログ(アンドクリエイト総合カタログ)
アンドクリエイト総合カタログ
問合コード:1548090001
お問い合わせ先
0800-800-7070
  • ※営業時間内の対応となります。

  • ※お問い合わせの際は「SUUMO(スーモ)を見て」とお伝え下さい。

  • 新潟県新潟市中央区湖南5-4

この会社のホームページへ

この会社が気になったら

カタログをもらう
総合カタログ
アンドクリエイトのカタログ(アンドクリエイト総合カタログ)
アンドクリエイト総合カタログ
問合コード:1548090001

関連キーワード

この建築実例のその他の特徴
ページトップへ戻る