アンドクリエイト

アンドクリエイト

あなたの夢+αの住まいづくりをご提案いたします
お気に入りに追加する
新潟県新発田市  Kさん
アカシアの床が広がるシックな大人のインテリア
アンドクリエイト アカシアの床が広がるシックな大人のインテリアの建築実例画像1
  • 本体価格
    2,000万円2,499万円
    61.9万円77.4万円/坪
  • 延床面積
    106.82m2 (32.3坪)
    敷地面積
    199.04m2 (60.2坪)
    家族構成
    夫婦+子ども2人
  • 竣工年月
    2020年12月
    工法
    木造軸組
この会社をもっと知りたくなったら
無料でお届け!まずはカタログ請求

施主Kさんのこだわり

粋な大人モダン空間で、ゆったりと上質な暮らしを愉しむ

ゆったりとした玄関を抜けると、その先には表情豊かなアカシアの床で仕上げたLDKが広がる。スチール階段やソファの黒が引き締める、シックな大人の空間だ。キッチンから子どもたちの様子を見ながら料理ができ、洗面脱衣室では洗濯、物干し、アイロンがけが完結する家事効率の良さも特長。「家で過ごすことが幸せだと思うようになり、インテリアを整えることが楽しみになりました」と施主様も大満足の住まいが完成した

ゆったりとした玄関を抜けると、その先には表情豊かなアカシアの床で仕上げたLDKが広がる。スチール階段やソファの黒が引き締める、シックな大人の空間だ。キッチンから子どもたちの様子を見ながら料理ができ、洗面脱衣室では洗濯、物干し、アイロンがけが完結する家事効率の良さも特長。「家で過ごすことが幸せだと思うようになり、インテリアを整えることが楽しみになりました」と施主様も大満足の住まいが完成した

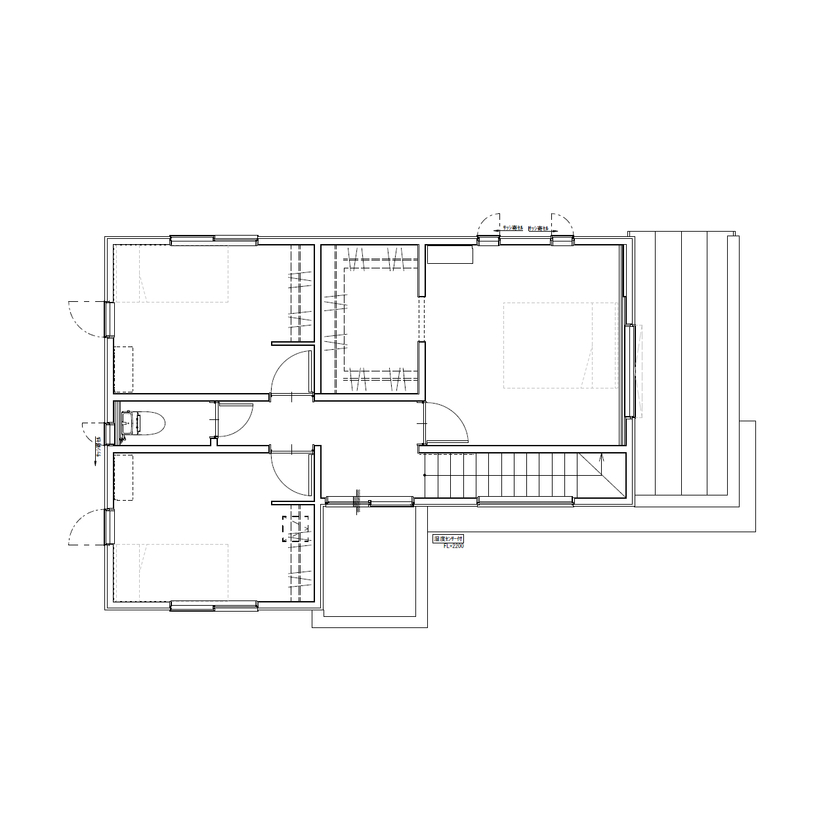
間取り図(3LDK)

1階
アンドクリエイト アカシアの床が広がるシックな大人のインテリアの間取り図(3LDK)1階
2階
アンドクリエイト アカシアの床が広がるシックな大人のインテリアの間取り図(3LDK)2階
この会社をもっと知りたくなったら
無料でお届け!まずはカタログ請求

内外観ギャラリー

この会社をもっと知りたくなったら
無料でお届け!まずはカタログ請求

この会社の他の建築実例を見る

この建築実例が気になった方へおすすめ

この建築実例の詳細情報

この建築実例を建てた店舗情報

住所 新潟県新潟市中央区湖南5-4
問い合わせ
0800-800-7070
  • ※営業時間内の対応となります。

  • ※お問い合わせの際は「SUUMO(スーモ)を見て」とお伝え下さい。

ホームページ この会社のホームページへ

アンドクリエイトのコンテンツ一覧

お問い合わせ

カタログをもらう
総合カタログ
アンドクリエイトのカタログ(アンドクリエイト総合カタログ)
アンドクリエイト総合カタログ
問合コード:1548090001
お問い合わせ先
0800-800-7070
  • ※営業時間内の対応となります。

  • ※お問い合わせの際は「SUUMO(スーモ)を見て」とお伝え下さい。

  • 新潟県新潟市中央区湖南5-4

この会社のホームページへ

この会社が気になったら

カタログをもらう
総合カタログ
アンドクリエイトのカタログ(アンドクリエイト総合カタログ)
アンドクリエイト総合カタログ
問合コード:1548090001

関連キーワード

この建築実例のその他の特徴
ページトップへ戻る