アンドクリエイト

アンドクリエイト

あなたの夢+αの住まいづくりをご提案いたします
お気に入りに追加する
リビング階段のあるホテルライクモダンな家
アンドクリエイト リビング階段のあるホテルライクモダンな家の建築実例画像1
  • 本体価格
    2,860万円
    71.4万円/坪
  • 延床面積
    132.49m2 (40.0坪)
    敷地面積
    -
    家族構成
    -
  • 竣工年月
    -
    工法
    木造軸組
この会社をもっと知りたくなったら
無料でお届け!まずはカタログ請求

施主Tさんのこだわり

ダークカラーでまとめた室内。シックな印象で大人なカッコイイ住まい

プランニング設計やコーディネートはもちろん、資金計画からアフターサービスにいたるまで、住まいづくりに関するすべての業務を、責任持って行う一貫体制を確立しているアンドクリエイト。家具や装飾品だけでなく、雑貨・小物のトータルコーディネートやオーダーメイドにまで相談に応じるサービスも構築。理想にピッタリの住まいづくりを安心して任せられるのだ。そんな同社で夢を叶えたTさんの住まいは、ダークカラーを基調としたモダンでシックなデザインでまとめた空間。リビング階段とTV… 続きを読む

プランニング設計やコーディネートはもちろん、資金計画からアフターサービスにいたるまで、住まいづくりに関するすべての業務を、責任持って行う一貫体制を確立しているアンドクリエイト。家具や装飾品だけでなく、雑貨・小物のトータルコーディネートやオーダーメイドにまで相談に応じるサービスも構築。理想にピッタリの住まいづくりを安心して任せられるのだ。そんな同社で夢を叶えたTさんの住まいは、ダークカラーを基調としたモダンでシックなデザインでまとめた空間。リビング階段とTVを配置する壁を組み合わせたデザインが印象的。また、ぐるっと回れるキッチンの両脇に書斎や小上がりを設けて、空間を繋ぎながらもゾーニング。趣味や勉強、家事などその行動に合わせて場所を変えることで、気持ちを切り替えることができる間取りになっている。家具や小物もアンドクリエイトなら、理想にピッタリのデザインでそろえることができるのも嬉しい特徴だ。

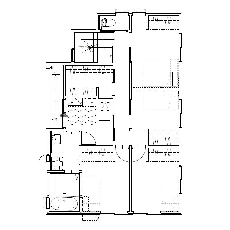
間取り図(4LDK)

1階
アンドクリエイト リビング階段のあるホテルライクモダンな家の間取り図(4LDK)1階
2階
アンドクリエイト リビング階段のあるホテルライクモダンな家の間取り図(4LDK)2階
この会社をもっと知りたくなったら
無料でお届け!まずはカタログ請求

内外観ギャラリー

この会社をもっと知りたくなったら
無料でお届け!まずはカタログ請求

この会社の他の建築実例を見る

この建築実例が気になった方へおすすめ

この建築実例の詳細情報

この建築実例を建てた店舗情報

住所 新潟県新潟市中央区湖南5-4
問い合わせ
0800-800-7070
  • ※営業時間内の対応となります。

  • ※お問い合わせの際は「SUUMO(スーモ)を見て」とお伝え下さい。

ホームページ この会社のホームページへ

アンドクリエイトのコンテンツ一覧

お問い合わせ

カタログをもらう
総合カタログ
アンドクリエイトのカタログ(アンドクリエイト総合カタログ)
アンドクリエイト総合カタログ
問合コード:1548090001
お問い合わせ先
0800-800-7070
  • ※営業時間内の対応となります。

  • ※お問い合わせの際は「SUUMO(スーモ)を見て」とお伝え下さい。

  • 新潟県新潟市中央区湖南5-4

この会社のホームページへ

この会社が気になったら

カタログをもらう
総合カタログ
アンドクリエイトのカタログ(アンドクリエイト総合カタログ)
アンドクリエイト総合カタログ
問合コード:1548090001

関連キーワード

この建築実例のその他の特徴
ページトップへ戻る