オスカーホーム

オスカーホーム

【富山・石川・福井・新潟】世代を超えて、長く住み継げる住まい
お気に入りに追加する
インナーガレージの利便性、吹き抜けとテラスが描くのびやかな暮らし
オスカーホーム インナーガレージの利便性、吹き抜けとテラスが描くのびやかな暮らしの建築実例画像1
  • 本体価格
    2,500万円2,999万円
    50.7万円60.8万円/坪
  • 延床面積
    163.16m2 (49.3坪)
    敷地面積
    260.00m2 (78.6坪)
    家族構成
    -
  • 竣工年月
    2025年8月
    工法
    2×4、2×6
この会社をもっと知りたくなったら
無料でお届け!まずはカタログ請求

施主のこだわり

車から生活空間まで直結する設計と、開放的な大空間の融合

この住まいの特徴は、暮らしを大きく広げるインナーガレージ。多目的な使い方や雨に濡れず、雪下ろし不要の実用性はもちろん、外に出ず出入りできる動線を2方向に確保している点が大きなポイント。ひとつは玄関クロークから、もうひとつはLDKへ続く扉から。玄関クロークは靴や趣味の道具を収納でき、外出時だけでなくインナーガレージで必要な物もさっと取り出せて便利。LDKにつながる扉の先には壁一面のパントリーがあり、買い出し後の片付けがスムーズ。車からの動線と収納を一体化して… 続きを読む

この住まいの特徴は、暮らしを大きく広げるインナーガレージ。多目的な使い方や雨に濡れず、雪下ろし不要の実用性はもちろん、外に出ず出入りできる動線を2方向に確保している点が大きなポイント。ひとつは玄関クロークから、もうひとつはLDKへ続く扉から。玄関クロークは靴や趣味の道具を収納でき、外出時だけでなくインナーガレージで必要な物もさっと取り出せて便利。LDKにつながる扉の先には壁一面のパントリーがあり、買い出し後の片付けがスムーズ。車からの動線と収納を一体化して考えられ、快適な暮らしを支えている。ジャパンディのコーディネートで、落ち着きと温かみを両立したリビングは、吹き抜けによる大らかな開放感が広がり、大型テラスとフラットにつながる設計。大型テラスはバーベキューや子どもの遊び場として楽しめ、室内外を行き来しながら、のびのびと過ごせる。家族の時間をさらに密にしてくれるのは、効率的な家事動線だ。一直線にまとめた水回りは移動が短く、物干しや作業台を備えたユーティリティでは洗濯から畳むまでを一気に完結できる。キッチンとの距離も近いため、複数の家事を同時に進めやすく大助かり。加えて、玄関には洗面スペースを設置し、帰宅後すぐに使え、衛生面にうれしい工夫だ。インナーガレージの使いやすさ、吹き抜けとテラスがもたらす広がり。その組み合わせが心地よい暮らしを形づくっている。

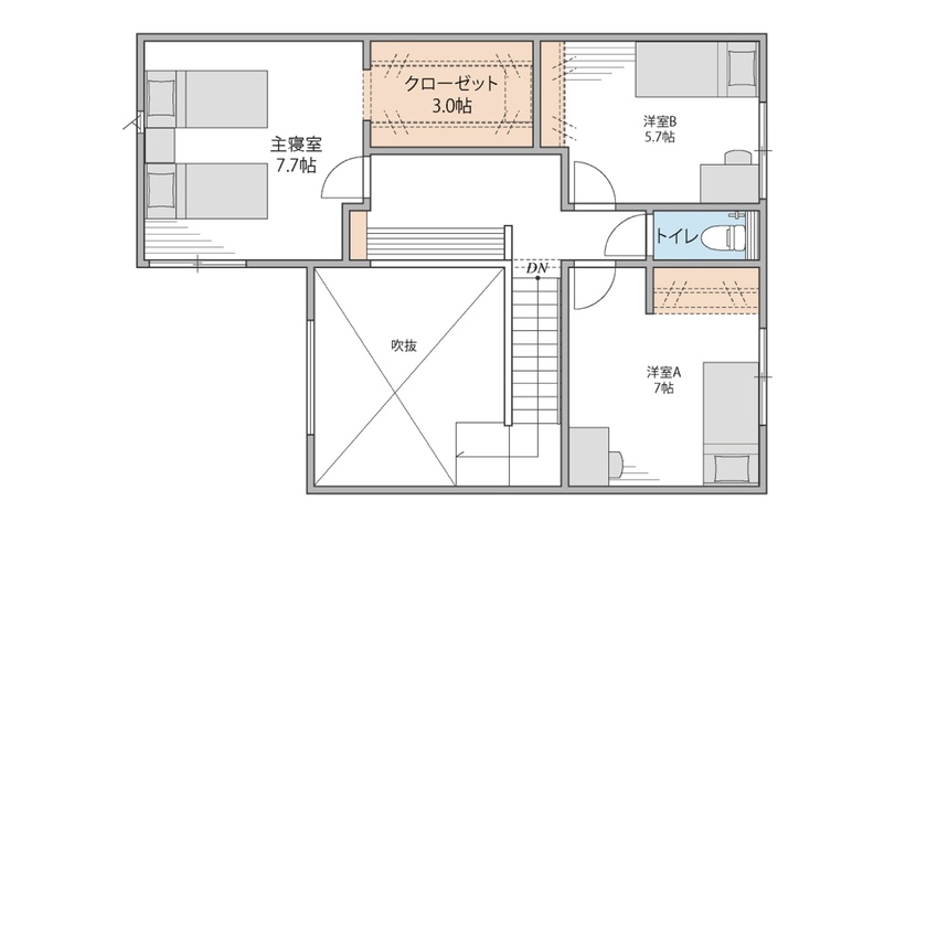
間取り図(4LDK)

1階
オスカーホーム インナーガレージの利便性、吹き抜けとテラスが描くのびやかな暮らしの間取り図(4LDK)1階
2階
オスカーホーム インナーガレージの利便性、吹き抜けとテラスが描くのびやかな暮らしの間取り図(4LDK)2階
この会社をもっと知りたくなったら
無料でお届け!まずはカタログ請求

内外観ギャラリー

この会社をもっと知りたくなったら
無料でお届け!まずはカタログ請求

この会社の他の建築実例を見る

この建築実例が気になった方へおすすめ

この建築実例の詳細情報

この建築実例を建てた店舗情報

住所 富山県富山市掛尾栄町1-1
問い合わせ
0120-00-8912
  • ※営業時間内の対応となります。

  • ※お問い合わせの際は「SUUMO(スーモ)を見て」とお伝え下さい。

ホームページ この会社のホームページへ

オスカーホームのコンテンツ一覧

お問い合わせ

カタログをもらう
総合カタログ
オスカーホームのカタログ(快適・安心の住まい。オスカーの家の特徴をまとめた資料をお届け)
快適・安心の住まい。オスカーの家の特徴をまとめた資料をお届け
問合コード:5012620001
お問い合わせ先
0120-00-8912
  • ※営業時間内の対応となります。

  • ※お問い合わせの際は「SUUMO(スーモ)を見て」とお伝え下さい。

  • 富山県富山市掛尾栄町1-1

  • 定休日:水曜日・お盆・年末年始

この会社のホームページへ

この会社が気になったら

カタログをもらう
総合カタログ
オスカーホームのカタログ(快適・安心の住まい。オスカーの家の特徴をまとめた資料をお届け)
快適・安心の住まい。オスカーの家の特徴をまとめた資料をお届け
問合コード:5012620001

関連キーワード

この建築実例のその他の特徴
ページトップへ戻る