千里殖産

千里殖産

2×4・在来工法どちらでも提案可能。熊本での土地探し・家づくりは千里殖産へ
お気に入りに追加する
熊本県熊本市中央区  Mさん
グレーの外観でまとまったスタイリッシュモダンハウス
千里殖産 グレーの外観でまとまったスタイリッシュモダンハウスの建築実例画像1
  • 本体価格
    1,750万円
    84.7万円/坪
  • 延床面積
    68.36m2 (20.6坪)
    敷地面積
    -
    家族構成
    -
  • 竣工年月
    -
    工法
    木造軸組
この会社をもっと知りたくなったら
無料でお届け!まずはカタログ請求

施主Mさんのこだわり

鉄筋コンクリート住宅をモチーフに仕上げた猫と一緒に住む家

5.5寸勾配の片流れの屋根にグレー色で統一された締まりのある外観とは裏腹に、1歩室内に入れば白1色と木目の床と建具でまとまった和みある空間に一変する。玄関ホールには、施主が考案した愛猫専用のゲージとスペースを展開。さらには、勾配天井の高さを活かし、吹き抜けの階段と小屋裏収納を設けたのも施主のこだわったポイントだ。平屋でありがちの採光が取れにくい場所へもトップライトを設ける事で、昼間では電気をつける必要がない程の明るさで部屋全体を照らしてくれるのも、この家の… 続きを読む

5.5寸勾配の片流れの屋根にグレー色で統一された締まりのある外観とは裏腹に、1歩室内に入れば白1色と木目の床と建具でまとまった和みある空間に一変する。玄関ホールには、施主が考案した愛猫専用のゲージとスペースを展開。さらには、勾配天井の高さを活かし、吹き抜けの階段と小屋裏収納を設けたのも施主のこだわったポイントだ。平屋でありがちの採光が取れにくい場所へもトップライトを設ける事で、昼間では電気をつける必要がない程の明るさで部屋全体を照らしてくれるのも、この家の大きな魅力の1つだ。

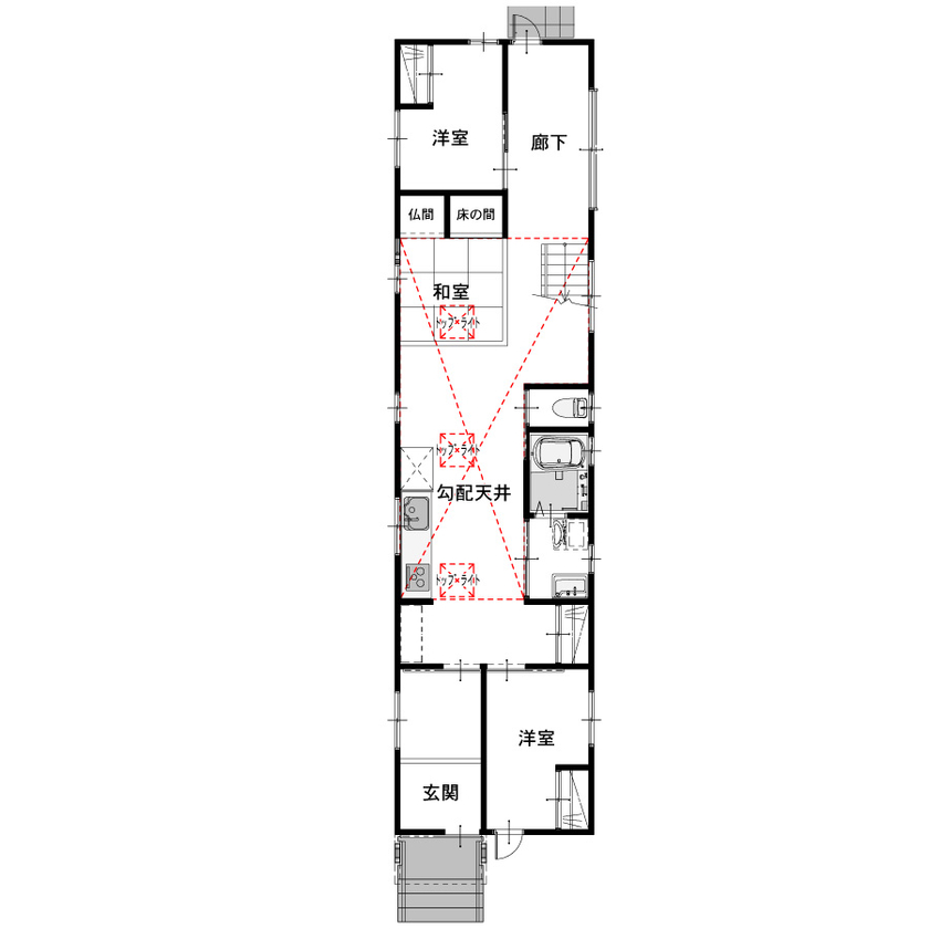
間取り図(2LDK+小屋裏収納)

1階
千里殖産 グレーの外観でまとまったスタイリッシュモダンハウスの間取り図(2LDK+小屋裏収納)1階
小屋裏収納
千里殖産 グレーの外観でまとまったスタイリッシュモダンハウスの間取り図(2LDK+小屋裏収納)小屋裏収納
この会社をもっと知りたくなったら
無料でお届け!まずはカタログ請求

内外観ギャラリー

この会社をもっと知りたくなったら
無料でお届け!まずはカタログ請求

この建築実例が気になった方へおすすめ

この建築実例の詳細情報

この建築実例を建てた店舗情報

住所 熊本県熊本市中央区紺屋阿弥陀寺町10 千里殖産ビル5F
問い合わせ
0120-32-2000
  • ※営業時間内の対応となります。

  • ※お問い合わせの際は「SUUMO(スーモ)を見て」とお伝え下さい。

ホームページ この会社のホームページへ

千里殖産のコンテンツ一覧

お問い合わせ

カタログをもらう
総合カタログ
千里殖産のカタログ(SENRI会社案内)
SENRI会社案内
問合コード:1021730001
お問い合わせ先
0120-32-2000
  • ※営業時間内の対応となります。

  • ※お問い合わせの際は「SUUMO(スーモ)を見て」とお伝え下さい。

  • 熊本県熊本市中央区紺屋阿弥陀寺町10 千里殖産ビル5F

  • 定休日:水曜日

この会社のホームページへ

この会社が気になったら

カタログをもらう
総合カタログ
千里殖産のカタログ(SENRI会社案内)
SENRI会社案内
問合コード:1021730001

関連キーワード

この建築実例のその他の特徴
ページトップへ戻る