丸和建設

丸和建設

自然素材でつくる健康省エネ住宅(平屋、2 階建て、ZEH 、長期優良住宅)
お気に入りに追加する
鹿児島県鹿屋市  Hさん
【鹿屋市 平屋】33.31坪(110.13m2) タイルデッキと車・バイク用ガレージがある家
丸和建設 【鹿屋市 平屋】33.31坪(110.13m2) タイルデッキと車・バイク用ガレージがある家の建築実例画像1
  • 本体価格
    3,000万円3,499万円
    90.1万円105.1万円/坪
  • 延床面積
    110.13m2 (33.3坪)
    敷地面積
    -
    家族構成
    夫婦+子ども3人
  • 竣工年月
    -
    工法
    木造軸組
この会社をもっと知りたくなったら
無料でお届け!まずはカタログ請求

施主Hさんのこだわり

思い切って寝室を作らなかったことが大正解。家族の中がより良くなった

Hさんと丸和建設の出会いは10年以上前。当時はタイミングもあり、マイホーム建築を見送ったHさんだったが、10年の月日を経て完成した理想の家がこのH邸だ。玄関を上がり、リビングの戸を開くと広々とした印象のH邸。このリビングがHさんこだわりの空間。壁・天井ともに真っ白な漆喰で仕上げられ、大開口から差し込む外の光も相まって、明るさと開放感にあふれている。リビングから繋がる和室は6帖以上ある広々とした空間。普段は夫婦の寝室として利用している。寝室を設けなかったこと… 続きを読む

Hさんと丸和建設の出会いは10年以上前。当時はタイミングもあり、マイホーム建築を見送ったHさんだったが、10年の月日を経て完成した理想の家がこのH邸だ。玄関を上がり、リビングの戸を開くと広々とした印象のH邸。このリビングがHさんこだわりの空間。壁・天井ともに真っ白な漆喰で仕上げられ、大開口から差し込む外の光も相まって、明るさと開放感にあふれている。リビングから繋がる和室は6帖以上ある広々とした空間。普段は夫婦の寝室として利用している。寝室を設けなかったことにより、家の中の時間はリビングで過ごすようになったとのこと。「家族はほとんどこのリビングにいます。子ども部屋にベッドもあるのですが、子どもたちも和室にきて家族みんなで寝ています」とのこと。もともと仲の良かったHさん家族だが、以前よりさらに仲が良くなった。

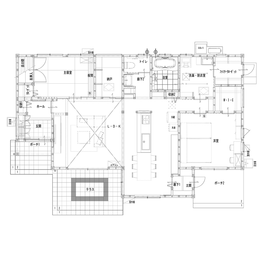
間取り図(2LDK+納戸)

1階
丸和建設 【鹿屋市 平屋】33.31坪(110.13m2) タイルデッキと車・バイク用ガレージがある家の間取り図(2LDK+納戸)1階
この会社をもっと知りたくなったら
無料でお届け!まずはカタログ請求

内外観ギャラリー

この会社をもっと知りたくなったら
無料でお届け!まずはカタログ請求

この会社の他の建築実例を見る

この建築実例が気になった方へおすすめ

この建築実例の詳細情報

この建築実例を建てた店舗情報

住所 鹿児島県鹿児島市与次郎2丁目4-43
問い合わせ
0120-550-835
  • ※営業時間内の対応となります。

  • ※お問い合わせの際は「SUUMO(スーモ)を見て」とお伝え下さい。

ホームページ この会社のホームページへ

丸和建設のコンテンツ一覧

お問い合わせ

カタログをもらう
プラン集
丸和建設のカタログ(【2F・平屋】プラン集)
【2F・平屋】プラン集
問合コード:1177710001
お問い合わせ先
0120-550-835
  • ※営業時間内の対応となります。

  • ※お問い合わせの際は「SUUMO(スーモ)を見て」とお伝え下さい。

  • 鹿児島県鹿児島市与次郎2丁目4-43

  • 定休日:年末年始

この会社のホームページへ

この会社が気になったら

カタログをもらう
プラン集
丸和建設のカタログ(【2F・平屋】プラン集)
【2F・平屋】プラン集
問合コード:1177710001

関連キーワード

この建築実例のその他の特徴
ページトップへ戻る