【2500万円~2999万円/家事動線/38坪/間取図有】空間を包み込む木の心地よさ。洗練の造作家具で暮らす家
-
本体価格
2,500万円~2,999万円
(65.8万円~78.9万円/坪)
-
-
施主Eさんのこだわり
モデルハウスや見学会などで、同社の家を体感したというEさんご夫妻。「無垢材や自然素材の質感、造作家具のセンス、それに高い性能も併せ持っていて。その心地よい雰囲気が大好きになりました」。お二人の大きな要望は、キッチンまわりの造作家具、趣味のための土間スペース、玄関の近くに浴室を配置すること。提案された間取りは、ゆったりとしたLDK、玄関とつながる土間スペース、大きなウッドデッキを中心としており、土間や子ども室といった個室も、室内窓で他の空間とつながる。玄関ホ…
続きを読む
モデルハウスや見学会などで、同社の家を体感したというEさんご夫妻。「無垢材や自然素材の質感、造作家具のセンス、それに高い性能も併せ持っていて。その心地よい雰囲気が大好きになりました」。お二人の大きな要望は、キッチンまわりの造作家具、趣味のための土間スペース、玄関の近くに浴室を配置すること。提案された間取りは、ゆったりとしたLDK、玄関とつながる土間スペース、大きなウッドデッキを中心としており、土間や子ども室といった個室も、室内窓で他の空間とつながる。玄関ホール~LDK~パントリー・洗面コーナー~玄関ホールと回遊できる動線も使いやすい。パントリーと洗面コーナーは仕切らず同じスペースに設け、キッチンとの間にも建具がないので、空気の流れを生んで気持ちのよい室内に。ご夫妻は「また家を建てるとしても、同じ間取りにしたいくらい気に入っています」と絶賛している。モデルハウスでは、キッチンからリビングまでの壁にひとつながりに設けられている造作カウンター。それをアレンジした、お子さん用のスタディコーナーも印象的だ。1、2階の洗面台、玄関の靴箱なども造作され、デザインと使い勝手のよさを両立した味わい深い設えとなっている。茨城県産材の無垢材を贅沢に採り入れたE氏邸。その心地よさを存分に愉しんでいるご家族だ。
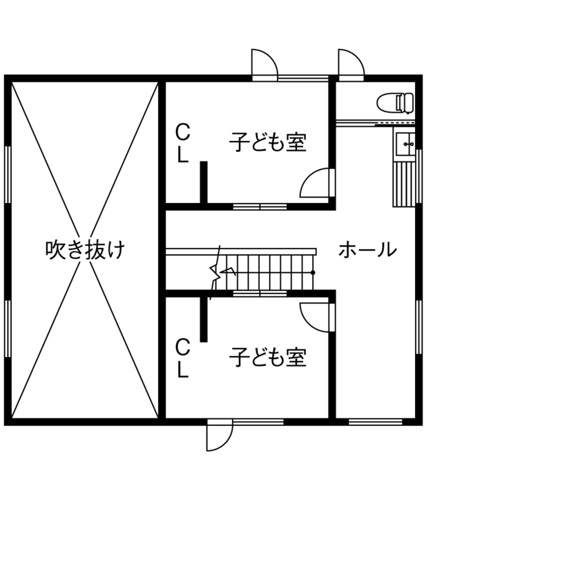
間取り図(3LDK+土間)
内外観ギャラリー
-
およそ幅6.8m、奥行き2.2mの広々としたウッドデッキは、念願の屋根付き。天候に左右されずその空間を愉しめる…
続きを読む
およそ幅6.8m、奥行き2.2mの広々としたウッドデッキは、念願の屋根付き。天候に左右されずその空間を愉しめる。リビングと庭をつないで、屋外をより身近に感じさせてくれる憩いの場だ
-
左右非対称な2階の切妻屋根と、屋根のある大きなウッドデッキが印象的な外観。軒の深さや開口部のサイズなどで光と風…
続きを読む
左右非対称な2階の切妻屋根と、屋根のある大きなウッドデッキが印象的な外観。軒の深さや開口部のサイズなどで光と風をコントロールするパッシブデザインの住まい。オレンジ色の木を貼った右側の外壁が、白い塗り壁のアクセントに
-
家族が集まるDK。右の壁にキッチンを設置し、手前には造作の作業台をレイアウトした。「モデルハウスのII型キッチ…
続きを読む
家族が集まるDK。右の壁にキッチンを設置し、手前には造作の作業台をレイアウトした。「モデルハウスのII型キッチンが気に入ったので、壁付キッチン+作業台で似た配置にしてもらいました」。下部には、作業台のどちら側からも取り出すことができる食器用引き出し収納と棚が設計され、使い勝手のよいつくりに。さらさらとして柔らかい肌触りの床は、茨城県産材のヒノキ
-
天井に張った木と化粧梁で、温かみやリラックス感が増したLDK。下げた吊り輪で大人が遊んでも、びくともしない頼も…
続きを読む
天井に張った木と化粧梁で、温かみやリラックス感が増したLDK。下げた吊り輪で大人が遊んでも、びくともしない頼もしい梁だ。左奥は、パントリーと洗面コーナーがあるスペース。突き当たりの引き戸からは脱衣室と浴室へ。パントリー・浴室を右へ出て玄関ホールからLDKへぐるりと回遊できる動線もあり、家事のしやすいレイアウトに
-
DKの一角に造作した、お子さんたちのスタディコーナー。2階の個室には机を置かず、勉強道具などはここに収納。キッ…
続きを読む
DKの一角に造作した、お子さんたちのスタディコーナー。2階の個室には机を置かず、勉強道具などはここに収納。キッチンやリビングからも目が届き、質問にも答えやすいので学習がはかどりそう
-
玄関から直接入れる土間は、自転車を運び込むのにも便利。ゆったりとした空間は、Eさんの在宅ワークやスノーボードの…
続きを読む
玄関から直接入れる土間は、自転車を運び込むのにも便利。ゆったりとした空間は、Eさんの在宅ワークやスノーボードのメンテナンス、DIYなどに使っている。正面の開口部からはウッドデッキへ出られる
-
階段下や壁面まで有効活用し、所狭しと工具を並べた土間は、アトリエのような空間。天候や近所への騒音を気にせず、心…
続きを読む
階段下や壁面まで有効活用し、所狭しと工具を並べた土間は、アトリエのような空間。天候や近所への騒音を気にせず、心ゆくまで趣味を愉しめる。中央付近にある室内窓からLDKの家族の気配を感じられる
-
2階のホールも、ゆとりある空間。お子さんの遊び場としても活躍する。奥にあるのは造作の洗面台。「2階トイレの手洗…
続きを読む
2階のホールも、ゆとりある空間。お子さんの遊び場としても活躍する。奥にあるのは造作の洗面台。「2階トイレの手洗いとしてはもちろん、1階の洗面台が混雑している時にも使えるよう、しっかり大きめにつくってもらいました」
-
洗濯物干し場としても重宝する2階ホール。右上の壁にあるのが子ども室の室内窓。2階の床には、温かみのあるスギを選…
続きを読む
洗濯物干し場としても重宝する2階ホール。右上の壁にあるのが子ども室の室内窓。2階の床には、温かみのあるスギを選んだ
-
2階の子ども室。奥に設けたクロゼットは扉を設けないことで部屋を広く見せ、使いやすい仕様に。右の壁は淡いパステル…
続きを読む
2階の子ども室。奥に設けたクロゼットは扉を設けないことで部屋を広く見せ、使いやすい仕様に。右の壁は淡いパステルカラーのアクセントクロスでやさしい雰囲気を演出した。2つある子ども室には、それぞれ階段に面した室内窓を設け、空気の流れや光の道筋をつくっている
この会社の他の建築実例を見る
-
-
-
【完全予約制/土日開催】自然素材と光・風を活かす設計士との平屋相談会|広い敷地でもコストを抑え、十分な部屋数を叶える自由設計の住まい@つくばモデルハウス
開催日
2025年12月3日~2026年1月31日 土日開催!
開催場所
茨城県つくば市研究学園6-51-2つくばハウジングパーク内
この建築実例の詳細情報
|
商品名
|
-
|
|
部材・設備
|
-
|
|
延床面積
|
125.66m2
(38.0坪)
|
|
敷地面積
|
362.39m2
(109.6坪)
|
|
工法
|
木造軸組
|
|
本体価格
|
2,500万円~2,999万円
|
|
竣工年月
|
2022年12月
|
この建築実例を建てた店舗情報
いばらきの家 茨城県南木造住宅センターのコンテンツ一覧