「サイエンスホームの木のあたたかなぬくもりと雰囲気に惹かれ、ここで建てたい!と新築を決意しました」と笑顔のHさん。共働き夫婦のため、家事のしやすい間取りを希望。将来的には1階完結型の生活スタイルを想定した家が完成しました。平屋風の1.5階建ての室内は、中に入ると柱や梁、床などに使用したひのきの香りに包まれます。多目的に使える畳スペースは、間仕切り扉をなくしたフラットフロア。リビングとの一体感が魅力の癒しの和空間です。「使い勝手が良く、部屋の雰囲気に合うイン… 続きを読む
「サイエンスホームの木のあたたかなぬくもりと雰囲気に惹かれ、ここで建てたい!と新築を決意しました」と笑顔のHさん。共働き夫婦のため、家事のしやすい間取りを希望。将来的には1階完結型の生活スタイルを想定した家が完成しました。平屋風の1.5階建ての室内は、中に入ると柱や梁、床などに使用したひのきの香りに包まれます。多目的に使える畳スペースは、間仕切り扉をなくしたフラットフロア。リビングとの一体感が魅力の癒しの和空間です。「使い勝手が良く、部屋の雰囲気に合うインテリアで揃えたキッチンもお気に入り」という奥さん。梁や柱が現しになった真壁づくりの高い傾斜天井のフォルムと吹き抜けが開放的です。1階の主寝室からもランドリーや浴室、WICへとアクセスできる間取りを実現。ランドリーから一歩出ればWICという便利さと、まだ小さな子どもの入浴や就寝にもコンパクトな動線が特長です。「家づくりは分からないことだらけでしたが、丁寧に説明していただき、安心して取り組むことができました」と話すHさん。新しい家で楽しみたいことは?との問いに、「2階のフリースペースを子どもの成長に合わせてコーディネートすること」と答えてくれました。「素晴らしいスタッフの方々に支えられ、素敵なお家に住めて幸せ。アフターフォローも助かっています!」。
| 商品名 | - |
| 部材・設備 | - |
| 商品名 | - |
| 部材・設備 | - |
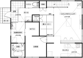
| 延床面積 | 120.00m2 (36.3坪) |
| 敷地面積 | 236.22m2 (71.4坪) |
| 工法 | 木造軸組(真壁づくり) |
| 本体価格 | 1,668万円 |
| 竣工年月 | 2022年2月 |
| 店舗名 | お客様係 |
| 住所 | 静岡県浜松市中央区萩丘3-1-10 |
| 問い合わせ | |
| ホームページ | この会社のホームページへ |
勾配天井で開放感にあふれ、明るいリビング全体が見渡せるキッチンからの眺め。子どもを遊ばせながら、調理ができるのも便利だ
素足に心地よいひのきの床は、夏でもさらりと快適で家族みんな一年中、裸足で過ごす。室内はいつも木の香りが漂い、リラックスした癒しの空間
キッチンからリビングが見渡せる間取り。子どもをリビングで遊ばせながら調理ができるのは安心だ。将来的には1階だけで生活ができるように部屋の配置を考えた
夫人の希望を叶えた、食事のほか、在宅ワークや将来子どもの学習場所にもできるカウンターテーブルを造作したキッチン
リビングの一部をフラットな畳コーナーに。子どものお昼寝スペースやゴロンと横になりたい休憩場としてなど、多目的に使えて便利
多目的に使える畳コーナーには造作の飾り棚を付けて収納も確保した
奥さんのお好きなインテリアでまとめたキッチン。背面の引き出しや食器棚は造作したもの。アイアンの黒い取っ手が無垢材の空間を引き締めている
キッチンの壁の一部をおしゃれなヘリンボーンのタイル張りにした。造作の背面棚や収納が使い勝手抜群だ
洗濯して、干して、畳みやアイロンがけまでできる広いランドリールーム。可動棚を付けて収納力もバッチリだ
ダイナミックな吹き抜けのある開放感に満ちた生活を満喫中のご家族。冬は暖かく、夏は涼しい外張り断熱の性能により、光熱費を削減し、エコな暮らしが実現する
勾配天井の1.5階のフリースペースは、寝室と子ども部屋として活用。「子どもの成長に合わせて仕切ったり、模様替えしたりしてコーディネートするのも楽しみ」と奥さん。平屋でよく課題となる、収納スペースや居室の確保も、サイエンスホームの外張り断熱なら、小屋裏まで有効に活用できるので、解決できるのがうれしい
サイエンスホームの家は外張り断熱で、家中を魔法瓶のようにすっぽり覆われているため、夏は涼しく冬は暖かい。小屋裏空間まで有効に活用できるのが特長だ
2階の一角は将来の子ども部屋。勾配天井がワクワクする素敵な空間だ。仕切ることを想定してドアと窓も二つずつ付けた
可動棚のオープンなシュークロークを造作した玄関ホール。そのまま洗面所にも行ける動線を確保
広い土間収納は、ベビーカーなど、外で使うものも気軽にしまえてとても便利
リビングの掃き出し窓の向こうに設けたタイルデッキ。子どもの遊び場として、またバーベキューをしたりなど、様々に活用している
落ち着いたグレーの外壁にウッド調の玄関ドアがアクセントの外観。ドアまでのアプローチの石畳と芝生がウェルカム感いっぱい
「子どもが誕生し、我が家もそろそろマイホームかなと決意しました。子どもに手がかかるうちは実用性を重視。子どもが巣立ち後の暮らしやすさも考えた間取りをお願いしました。家づくりは分からないことだらけでしたが、その都度わかりやすく説明いただき、安心して臨むことができました。北側の庭はタイルデッキで明るい印象に。玄関からLDKまでの動線を広く感じるようなアイデアを考えてくれ、懸念を上手に解消してくれました」と笑顔のHさんファミリー