ハーバーハウス

ハーバーハウス

新潟・長野で新築ならハーバーハウスへ!
お気に入りに追加する
子育て家族に人気の家事ラク×ZEH基準の高断熱住宅
ハーバーハウス 子育て家族に人気の家事ラク×ZEH基準の高断熱住宅の建築実例画像1
  • 本体価格
    -
  • 延床面積
    99.37m2 (30.0坪)
    敷地面積
    -
    家族構成
    -
  • 竣工年月
    -
    工法
    木造軸組
この会社をもっと知りたくなったら
無料でお届け!まずはカタログ請求

施主のこだわり

子育て家族の “ちょうどいい”を叶えた充実の30坪

和×北欧の「ジャパンディ」を意識して、ベージュ×ホワイト×グレージュの温かみある配色の中に、洗練された風合いを感じる空間を目指しました。視線の抜け感や、上質な雰囲気を演出するタイル、ウッドパネルの素材感もポイントです。間取りはランドリースペースとファミリークロークをセットにして、「洗う→干す→しまう」を最短距離で完結させました。キッチンとの距離も短くすることで、お料理をしながら洗濯をしたりと、効率よく家事をこなせるようになっています。外観にもこだわり、植栽… 続きを読む

和×北欧の「ジャパンディ」を意識して、ベージュ×ホワイト×グレージュの温かみある配色の中に、洗練された風合いを感じる空間を目指しました。視線の抜け感や、上質な雰囲気を演出するタイル、ウッドパネルの素材感もポイントです。間取りはランドリースペースとファミリークロークをセットにして、「洗う→干す→しまう」を最短距離で完結させました。キッチンとの距離も短くすることで、お料理をしながら洗濯をしたりと、効率よく家事をこなせるようになっています。外観にもこだわり、植栽やアプローチでおしゃれに個性を演出し、建物はシンプルなスクエア型ですがSOLIDOをアクセントにしたことで唯一無二のデザインとなりました。

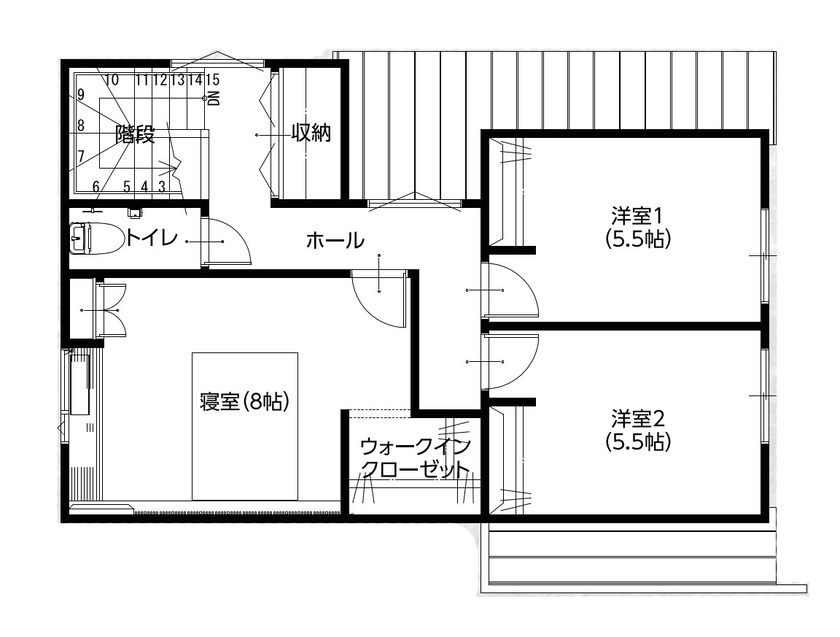
間取り図(3LDK)

1階
ハーバーハウス 子育て家族に人気の家事ラク×ZEH基準の高断熱住宅の間取り図(3LDK)1階
2階
ハーバーハウス 子育て家族に人気の家事ラク×ZEH基準の高断熱住宅の間取り図(3LDK)2階
この会社をもっと知りたくなったら
無料でお届け!まずはカタログ請求

内外観ギャラリー

この会社をもっと知りたくなったら
無料でお届け!まずはカタログ請求

この会社の他の建築実例を見る

この建築実例が気になった方へおすすめ

  • この建築実例のカタログをもらう

    ハーバーハウスのカタログ画像
    施工実例集
    ハーバーハウス スターターセット
    商品紹介やコンセプトブック等初めての方におすすめのカタログをまとめてお届けします

この建築実例の詳細情報

この建築実例を建てた店舗情報

店舗名 新潟本社
住所 新潟県新潟市中央区明石2丁目3-30
問い合わせ
0120-861-247
  • ※営業時間内の対応となります。

  • ※お問い合わせの際は「SUUMO(スーモ)を見て」とお伝え下さい。

ホームページ この会社のホームページへ

ハーバーハウスのコンテンツ一覧

お問い合わせ

カタログをもらう
施工実例集
ハーバーハウスのカタログ(ハーバーハウス スターターセット)
ハーバーハウス スターターセット
問合コード:1448800001
お問い合わせ先
027-386-8066
  • ※営業時間内の対応となります。

  • ※お問い合わせの際は「SUUMO(スーモ)を見て」とお伝え下さい。

高崎支店
  • 群馬県高崎市上中居町1700 スターブルA

  • 定休日:水曜日

この会社のホームページへ

この会社が気になったら

カタログをもらう
施工実例集
ハーバーハウスのカタログ(ハーバーハウス スターターセット)
ハーバーハウス スターターセット
問合コード:1448800001

関連キーワード

この建築実例のその他の特徴
ページトップへ戻る