アイダ設計

アイダ設計

心とお財布にゆとりが生まれる、999万円×高品質×自由設計の家。建て替えも応援!
お気に入りに追加する
千葉県南房総市  Sさん
【間取り図有/20坪台/3LDK/店舗兼用】フラダンス教室、美容院、居住空間、各スペースに配慮した設計の家
  • 本体価格
    -
  • 延床面積
    98.80m2 (29.8坪)
    敷地面積
    459.92m2 (139.1坪)
    家族構成
    -
    竣工年月
    -
    工法
    木造軸組
  • 特徴
    耐震・免震・制震  |  2階建て  |  省エネ・創エネ・エコ(eco)  |  家事がラク  |  高耐久  |  高気密・高断熱  |  高耐火  |  …
この会社をもっと知りたくなったら
無料でお届け!まずはカタログ請求

施主Sさんのこだわり

フラダンス教室と美容室ができる家づくりにこだわり、まるで天国で暮らしているみたい

私が美容室を、妻がフラダンス教室をやりたい、ということが大前提で家づくりを始めました。1階部分に美容室とフラダンス教室を配置して、玄関はそれぞれの入口をつくりたいということで2箇所に設置。特にフラダンス教室は25.5畳と広々としたスペースにして、ゆったりとフラダンスが楽しめる空間づくりにこだわりました。1階の階段の入口にはドアを設置して、互いの活動を邪魔しないように配慮した設計にもなっています。2階の居住空間も含め、夏は涼しく、冬は暖かく過ごせるようになっ… 続きを読む

私が美容室を、妻がフラダンス教室をやりたい、ということが大前提で家づくりを始めました。1階部分に美容室とフラダンス教室を配置して、玄関はそれぞれの入口をつくりたいということで2箇所に設置。特にフラダンス教室は25.5畳と広々としたスペースにして、ゆったりとフラダンスが楽しめる空間づくりにこだわりました。1階の階段の入口にはドアを設置して、互いの活動を邪魔しないように配慮した設計にもなっています。2階の居住空間も含め、夏は涼しく、冬は暖かく過ごせるようになっていて、妻は「まるで天国で暮らしているみたい」と喜んでいます。外構はこれから二人で整えていこうと考えていますが、フラダンスが踊れるステージをつくって、バーベキューも楽しめるようにしたいなどと、二人で夢を語り合っています。

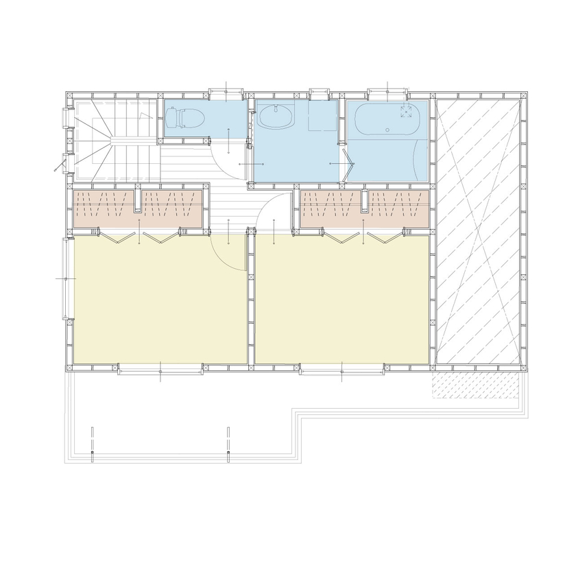
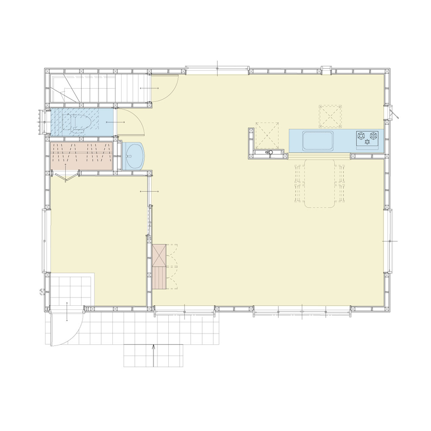
間取り図(3LDK)

1階
アイダ設計 【間取り図有/20坪台/3LDK/店舗兼用】フラダンス教室、美容院、居住空間、各スペースに配慮した設計の家の間取り図(3LDK)1階

2階
アイダ設計 【間取り図有/20坪台/3LDK/店舗兼用】フラダンス教室、美容院、居住空間、各スペースに配慮した設計の家の間取り図(3LDK)2階

この会社をもっと知りたくなったら
無料でお届け!まずはカタログ請求

内外観ギャラリー

この会社をもっと知りたくなったら
無料でお届け!まずはカタログ請求

施主Sさんがこの会社に決めた理由

美容室とフラダンス教室ができる家づくりを、希望する予算内で提案してくれたから

「美容室とフラダンス教室ができる家づくりをするのに、コスト面で魅力的だったのがアイダ設計の完全自由設計の家だった」と、家づくりが具体化する前を思い出しながらSさんご夫妻は語ってくれた。「それでいて住み心地がよくて、明るい家であればシンプルでいい、かつ予算内で、という要望を出したところ、こちらの想いに丁寧に応える提案をしてくださったのがアイダ設計の営業担当の方でした」(Sさんご夫妻)。コストは抑えて建てたい、だけど安っぽい仕上がりにはしたくない、という想いを… 続きを読む

「美容室とフラダンス教室ができる家づくりをするのに、コスト面で魅力的だったのがアイダ設計の完全自由設計の家だった」と、家づくりが具体化する前を思い出しながらSさんご夫妻は語ってくれた。「それでいて住み心地がよくて、明るい家であればシンプルでいい、かつ予算内で、という要望を出したところ、こちらの想いに丁寧に応える提案をしてくださったのがアイダ設計の営業担当の方でした」(Sさんご夫妻)。コストは抑えて建てたい、だけど安っぽい仕上がりにはしたくない、という想いを最大限汲んでくれ、広々としたフラダンス教室用のスタジオをはじめ、自由設計ならではのプランを提案してもらえて「本当によかった」とご夫妻は笑顔を見せてくださった。「シンプルだけど住みやすくて、天国で暮らしているようだし、宇宙のVIPルームにいるような気分」と、奥様は独特の表現で理想の住まいを手に入れられた喜びを語ってくれた。

この会社の他の建築実例を見る

この建築実例が気になった方へおすすめ

この建築実例の詳細情報

アイダ設計のコンテンツ一覧

お問い合わせ

カタログをもらう
カタログ一覧

この会社が気になったら

カタログをもらう

関連キーワード

この建築実例のその他の特徴
3人家族  |  アメリカン  |  地中海  |  洋風モダン  |  洋風  |  南欧  |  おしゃれ  |  かわいい  |  開放感  |  落ち着き  |  かっこいい  |  クール  |  エレガンス  |  24時間換気システム  |  子供部屋  |  窓が多い  |  併用住宅
ページトップへ戻る