アイダ設計

アイダ設計

心とお財布にゆとりが生まれる、999万円×高品質×自由設計の家。建て替えも応援!
お気に入りに追加する
静岡県熱海市  Oさん
【間取り図有/20坪台/リゾート】海を望める陽光差し込む邸宅、太陽光発電で光熱費を抑えたエコ住宅
  • 本体価格
    -
  • 延床面積
    89.43m2 (27.0坪)
    敷地面積
    233.45m2 (70.6坪)
    家族構成
    -
    竣工年月
    -
    工法
    木造軸組
  • 特徴
    耐震・免震・制震  |  2階建て  |  省エネ・創エネ・エコ(eco)  |  収納充実  |  家事がラク  |  高耐久  |  高気密・高断熱  |  …
この会社をもっと知りたくなったら
無料でお届け!まずはカタログ請求

施主Oさんのこだわり

太陽光発電は、予想以上に電気代がかからない。IHのお湯を沸かす早さにも驚いた。

太陽光発電は、始めはつけるつもりがありませんでした。しかし、改めて太陽光発電を設置した場合の見積もりを出してもらうと、思った以上に価格がリーズナブル。そこで自分でも太陽光発電について調べてみたところ、設置費用の回収はこれもまた思った以上に短い期間で可能らしい、ということがわかってきた。だったらつけてもいいんじゃないか、と思って設置することにしたのですが、実際に住んでみたら予想以上に電気代がかからない。高気密設計にしてもらったので、エアコンの効きがいいのだと… 続きを読む

太陽光発電は、始めはつけるつもりがありませんでした。しかし、改めて太陽光発電を設置した場合の見積もりを出してもらうと、思った以上に価格がリーズナブル。そこで自分でも太陽光発電について調べてみたところ、設置費用の回収はこれもまた思った以上に短い期間で可能らしい、ということがわかってきた。だったらつけてもいいんじゃないか、と思って設置することにしたのですが、実際に住んでみたら予想以上に電気代がかからない。高気密設計にしてもらったので、エアコンの効きがいいのだと思うのですが、その分電気代が抑えられるのでしょう。キッチンもIHにしてあるのですが、それでも電気代が少なくて済んでいるのでありがたい。驚いたのは、IHは想像以上にお湯が沸くのが早い。住んでからの「思った以上」「予想以上」「想像以上」がてんこもりです。

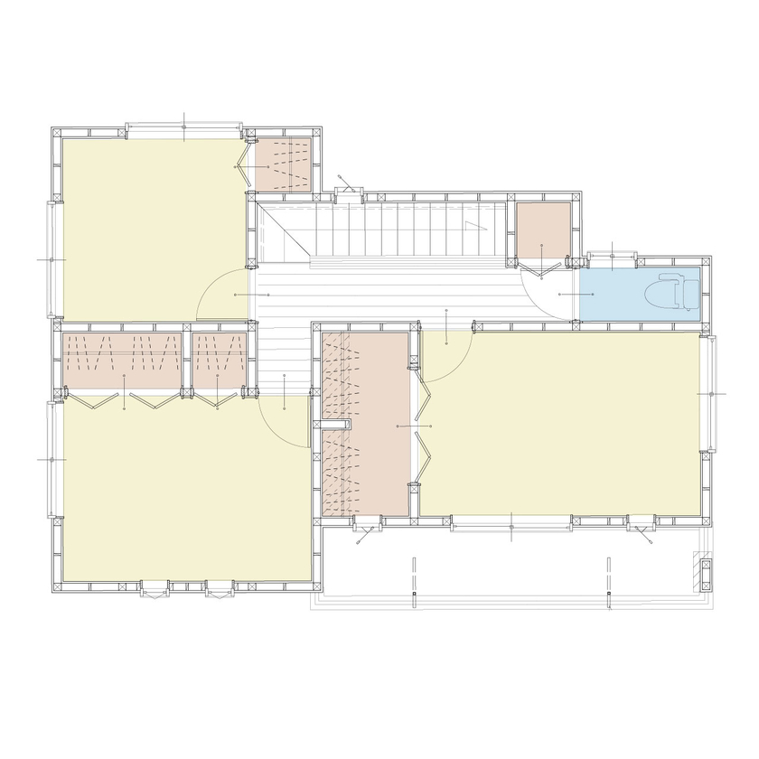
間取り図(3LDK)

1階
アイダ設計 【間取り図有/20坪台/リゾート】海を望める陽光差し込む邸宅、太陽光発電で光熱費を抑えたエコ住宅の間取り図(3LDK)1階

2階
アイダ設計 【間取り図有/20坪台/リゾート】海を望める陽光差し込む邸宅、太陽光発電で光熱費を抑えたエコ住宅の間取り図(3LDK)2階

この会社をもっと知りたくなったら
無料でお届け!まずはカタログ請求

内外観ギャラリー

この会社をもっと知りたくなったら
無料でお届け!まずはカタログ請求

施主Oさんがこの会社に決めた理由

決め手は「お手ごろ価格」しかし住んでみて、思った以上にしっかりしたつくりで大満足

「前々から家を建てたいと考えてはいたのですが、消費税が上がるタイミングだったこともあり、最終的に決めたのは『勢い』だったように思います」と、Oさんご夫妻は語る。アイダ設計に決めた理由は「お手ごろ価格」だというが、「価格なりなのかと思っていたら、思った以上にしっかりとしたつくりで満足している」と住んでみてからの感想を述べている。満足できた要因として大きいのは「太陽光発電」だそうで、電気代が予想以上に抑えられることには「ありがたい」と夫妻で声を揃えている。「そ… 続きを読む

「前々から家を建てたいと考えてはいたのですが、消費税が上がるタイミングだったこともあり、最終的に決めたのは『勢い』だったように思います」と、Oさんご夫妻は語る。アイダ設計に決めた理由は「お手ごろ価格」だというが、「価格なりなのかと思っていたら、思った以上にしっかりとしたつくりで満足している」と住んでみてからの感想を述べている。満足できた要因として大きいのは「太陽光発電」だそうで、電気代が予想以上に抑えられることには「ありがたい」と夫妻で声を揃えている。「その他の設備は標準仕様のものばかり。知り合いから『キッチンは広い方が使いやすい』というアドバイスをもらって広めの設計にしてもらったくらい。唯一不満を感じているのは、自分が決めた電気のスイッチの場所くらいでしょうか」(Oさんご夫妻のご主人)

この会社の他の建築実例を見る

この建築実例が気になった方へおすすめ

この建築実例の詳細情報

アイダ設計のコンテンツ一覧

お問い合わせ

カタログをもらう
カタログ一覧

この会社が気になったら

カタログをもらう

関連キーワード

この建築実例のその他の特徴
ページトップへ戻る