アイダ設計

アイダ設計

心とお財布にゆとりが生まれる、999万円×高品質×自由設計の家。建て替えも応援!
お気に入りに追加する
宮城県塩竈市  Aさん
【間取り図有/20坪台/耐震/美容室】モダンな雰囲気のおしゃれな店舗併用住宅
  • 本体価格
    -
  • 延床面積
    79.48m2 (24.0坪)
    敷地面積
    125.19m2 (37.8坪)
    家族構成
    -
    竣工年月
    -
    工法
    木造軸組
  • 特徴
    耐震・免震・制震  |  2階建て  |  省エネ・創エネ・エコ(eco)  |  高耐久  |  高気密・高断熱  |  高耐火  |  シンプルモダン  |  …
この会社をもっと知りたくなったら
無料でお届け!まずはカタログ請求

施主Aさんのこだわり

美容室をメインに考えていることを、設計担当の方も大工さんも理解してくれた

東日本大震災で被災し、仮設住宅に入っていましたが、それ以前にやっていた美容室を再開したい思いもあって、店舗兼住宅の建築を進めることにしました。美容室をメインで考えており、住居部分は父母が住むことのできるスペースが2階にあればいい、と思っていたのですが、そんな私たちのスタンスを設計担当の方や大工さんにも深く理解してもらえ、勉強してもらえたのはありがたかったです。鏡やシャンプー台の位置については細かなこだわりを聞いていただけましたし、私たちの美容室がお客様の男… 続きを読む

東日本大震災で被災し、仮設住宅に入っていましたが、それ以前にやっていた美容室を再開したい思いもあって、店舗兼住宅の建築を進めることにしました。美容室をメインで考えており、住居部分は父母が住むことのできるスペースが2階にあればいい、と思っていたのですが、そんな私たちのスタンスを設計担当の方や大工さんにも深く理解してもらえ、勉強してもらえたのはありがたかったです。鏡やシャンプー台の位置については細かなこだわりを聞いていただけましたし、私たちの美容室がお客様の男女比率が半々ということで、ユニセックスなアンティーク調の内装・インテリアを選択させてもらいました。引き渡し後も何か気になったことがあったら連絡し、丁寧にアフターフォローに対応していただけているのも満足度が高いです。

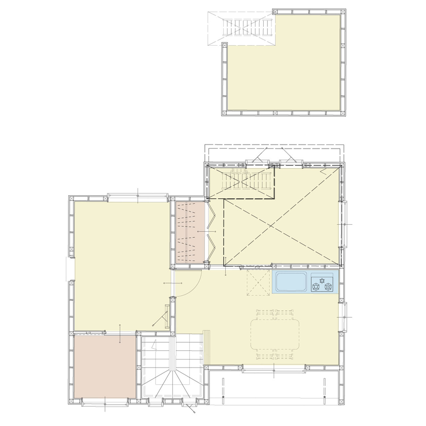
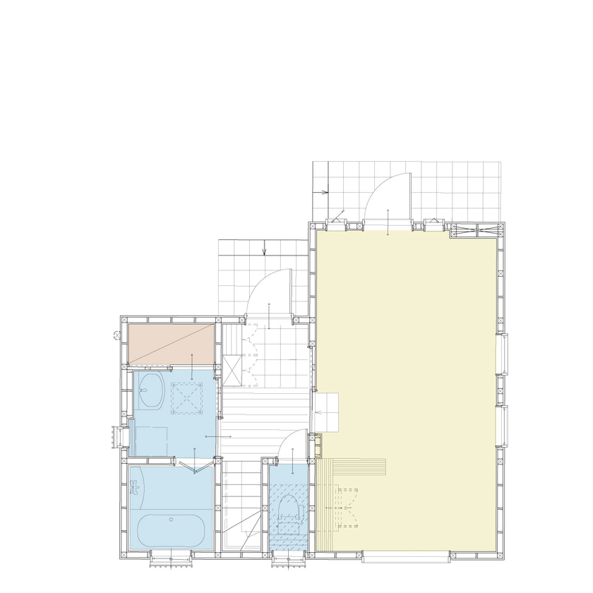
間取り図(3LDK)

1階
アイダ設計 【間取り図有/20坪台/耐震/美容室】モダンな雰囲気のおしゃれな店舗併用住宅の間取り図(3LDK)1階

2階
アイダ設計 【間取り図有/20坪台/耐震/美容室】モダンな雰囲気のおしゃれな店舗併用住宅の間取り図(3LDK)2階

この会社をもっと知りたくなったら
無料でお届け!まずはカタログ請求

内外観ギャラリー

この会社をもっと知りたくなったら
無料でお届け!まずはカタログ請求

施主Aさんがこの会社に決めた理由

震災で被災し、美容室を再開したいという想いに一番寄り添ってくれたから

「震災で被災した私たちに、寄り添うようにしていただけたのが本当に嬉しかった」と、Aさんは感慨深そうに語る。「美容室を再開したい」というAさんの想いを、営業担当も、設計担当も、大工さんも、みんなが「叶えたい」という気持ちで臨み、結実したのがAさん邸になった、ということだ。「複数のハウスメーカーに見積もりを依頼しましたが、私たちの気持ちを最も理解してくれて、さらに完全自由設計で自分たちの要望を細かに叶えてもらえて、それでいて価格も魅力的だったのはアイダ設計だけ… 続きを読む

「震災で被災した私たちに、寄り添うようにしていただけたのが本当に嬉しかった」と、Aさんは感慨深そうに語る。「美容室を再開したい」というAさんの想いを、営業担当も、設計担当も、大工さんも、みんなが「叶えたい」という気持ちで臨み、結実したのがAさん邸になった、ということだ。「複数のハウスメーカーに見積もりを依頼しましたが、私たちの気持ちを最も理解してくれて、さらに完全自由設計で自分たちの要望を細かに叶えてもらえて、それでいて価格も魅力的だったのはアイダ設計だけでした」(Aさん)住居部分では「キッチンの配置が自由にできてよかった」し、美容室の店舗部分では「私たちが震災前からやってきた美容室の特徴や顧客特性などにも理解をしてもらい、設計担当の方も大工さんも『店舗づくり』について勉強してくださっていることが手に取るようにわかったのは、うれしかった」そうだ。アフターフォローについても「美容室に来店されるお客様に話を聞くと、『すぐに来てくれるのはいいね。うらやましい』と言われます」と、満足げだった。

この会社の他の建築実例を見る

この建築実例が気になった方へおすすめ

この建築実例の詳細情報

アイダ設計のコンテンツ一覧

お問い合わせ

カタログをもらう
カタログ一覧

この会社が気になったら

カタログをもらう

関連キーワード

この建築実例のその他の特徴
ページトップへ戻る