アイダ設計

アイダ設計

心とお財布にゆとりが生まれる、999万円×高品質×自由設計の家。建て替えも応援!
お気に入りに追加する
埼玉県越谷市  Kさん
【間取り図有/30坪台/3LDK/リビングイン階段】イタリア家具や照明に合わせた便利な自家発電機能のある家
  • 本体価格
    -
  • 延床面積
    109.30m2 (33.0坪)
    敷地面積
    -
    家族構成
    -
    竣工年月
    -
    工法
    木造軸組
  • 特徴
    耐震・免震・制震  |  2階建て  |  省エネ・創エネ・エコ(eco)  |  収納充実  |  家事がラク  |  高耐久  |  高気密・高断熱  |  …
この会社をもっと知りたくなったら
無料でお届け!まずはカタログ請求

施主Kさんのこだわり

部屋にテーマを持ってアレンジを

埼玉県越谷市へ引っ越してくることになり、家を建てることになりました。私の家族がアイダ設計で家を建てており、とっても良かったと聞いていたのでアイダ設計にお願いすることにしました。リビングには光がたくさん入って、広々と感じるように間取りは大きく取ってもらいました。壁紙は家具との色合いを考えて、各部屋にテーマを持ってアレンジを行いました。イタリアから持ってきた家具や照明を日本でも使いたかったので、壁や床の補強をしてもらい、家具のサイズに合わせて設計してもらいまし… 続きを読む

埼玉県越谷市へ引っ越してくることになり、家を建てることになりました。私の家族がアイダ設計で家を建てており、とっても良かったと聞いていたのでアイダ設計にお願いすることにしました。リビングには光がたくさん入って、広々と感じるように間取りは大きく取ってもらいました。壁紙は家具との色合いを考えて、各部屋にテーマを持ってアレンジを行いました。イタリアから持ってきた家具や照明を日本でも使いたかったので、壁や床の補強をしてもらい、家具のサイズに合わせて設計してもらいました。ソーラーパネルもついてオール電化で自家発電機能もあるので、いざという時でも電気が使えてとても便利ですね。家族は、日本での生活は快適で、特に家での生活がお気に入りと言っています。担当営業さんがとても素晴らしくて、何でもすぐにやってくれました。アフターケアもきちんと行ってくれましたし、楽しく家を建てることができました。

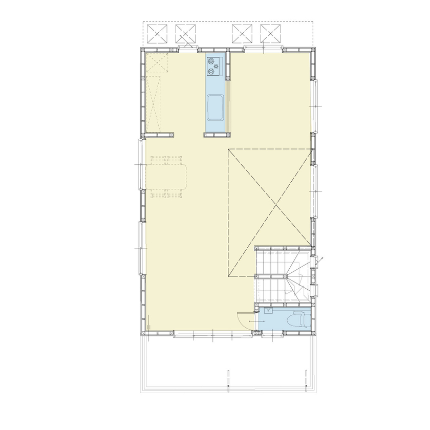
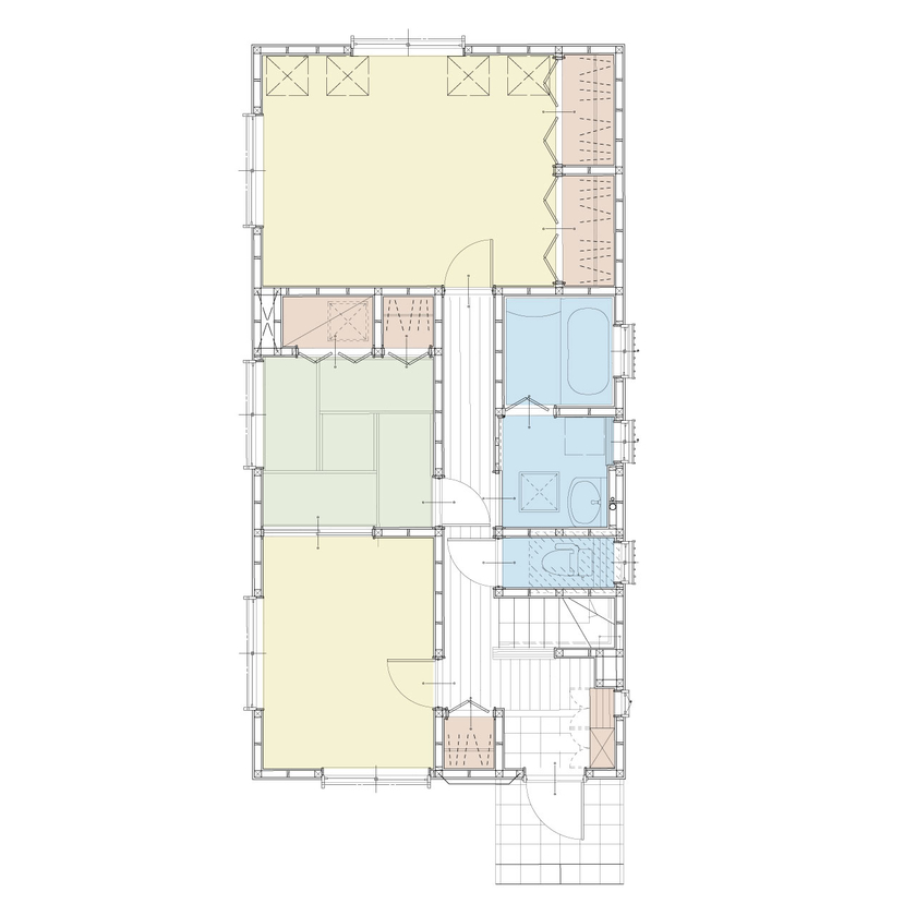
間取り図(3LDK)

1階
アイダ設計 【間取り図有/30坪台/3LDK/リビングイン階段】イタリア家具や照明に合わせた便利な自家発電機能のある家の間取り図(3LDK)1階

2階
アイダ設計 【間取り図有/30坪台/3LDK/リビングイン階段】イタリア家具や照明に合わせた便利な自家発電機能のある家の間取り図(3LDK)2階

この会社をもっと知りたくなったら
無料でお届け!まずはカタログ請求

内外観ギャラリー

この会社をもっと知りたくなったら
無料でお届け!まずはカタログ請求

施主Kさんがこの会社に決めた理由

ご家族がアイダ設計で家を建てていた。イタリア家具などをフル活用

Kさんご家族は埼玉県越谷市に転居するにあたり、転居前から使用していたイタリア家具や照明、キッチンなども活かした家を建てよう、と考えたそうだ。そんなKさんが相談したのは、アイダ設計で家を建てていたというご家族だった。その家を見て、「私たちもお願いしよう、と自然と思えた」そうである。「イタリア家具や照明、キッチンなどが活かせることももちろんでしたが、広々としていて光の差し込むリビングといった間取りへのこだわりや、部屋やスペースごとにテーマを持った壁紙選びなど、… 続きを読む

Kさんご家族は埼玉県越谷市に転居するにあたり、転居前から使用していたイタリア家具や照明、キッチンなども活かした家を建てよう、と考えたそうだ。そんなKさんが相談したのは、アイダ設計で家を建てていたというご家族だった。その家を見て、「私たちもお願いしよう、と自然と思えた」そうである。「イタリア家具や照明、キッチンなどが活かせることももちろんでしたが、広々としていて光の差し込むリビングといった間取りへのこだわりや、部屋やスペースごとにテーマを持った壁紙選びなど、いろいろと難しい要望を出させてもらいました。その一つひとつに丁寧に応えてくださり、楽しい家づくりができたと感じています」とのこと。そんな新しい家での生活は「快適。中でも家で過ごす時間が一番」とのことだ。

この会社の他の建築実例を見る

この建築実例が気になった方へおすすめ

この建築実例の詳細情報

アイダ設計のコンテンツ一覧

お問い合わせ

カタログをもらう
カタログ一覧

この会社が気になったら

カタログをもらう

関連キーワード

この建築実例のその他の特徴
ページトップへ戻る