綿半林業

綿半林業

「サイエンスホーム」「cotton1/2」伝統的な真壁工法の木の家を現代の性能に進化
お気に入りに追加する
奈良県  Yさん
【2000万円台前半/36坪/薪ストーブ/無垢材】家族でおうちキャンプが楽しめる念願の薪ストーブが似合う家
綿半林業 【2000万円台前半/36坪/薪ストーブ/無垢材】家族でおうちキャンプが楽しめる念願の薪ストーブが似合う家の建築実例画像1
  • 本体価格
    2,000万円2,499万円
    55.6万円69.5万円/坪
  • 延床面積
    119.00m2 (35.9坪)
    敷地面積
    230.66m2 (69.7坪)
    家族構成
    夫婦+子ども2人
  • 竣工年月
    2021年12月
    工法
    木造軸組(真壁づくり)
この会社をもっと知りたくなったら
無料でお届け!まずはカタログ請求

施主Yさんのこだわり

薪ストーブを囲みながらキャンプ気分で暮らしたい…家族の願いが叶って大満足!

「家族でおうちキャンプが楽しめる薪ストーブのある家」を希望していたYさんご夫妻。サイエンスホームとの出会いは近所で開催されていた完成見学会だった。「数社検討し、プラン提案や予算感、担当者の信頼感でサイエンスホームに決めました」とYさん。完成したのは、薪ストーブが似合うウッディな住まい。念願の薪ストーブは広々とした玄関土間に設置。隣にはたくさんのキャンプ道具などが仕舞える土間収納を設けた。玄関土間とダイニングの間につくった目隠し用の格子は、担当者の提案を採用… 続きを読む

「家族でおうちキャンプが楽しめる薪ストーブのある家」を希望していたYさんご夫妻。サイエンスホームとの出会いは近所で開催されていた完成見学会だった。「数社検討し、プラン提案や予算感、担当者の信頼感でサイエンスホームに決めました」とYさん。完成したのは、薪ストーブが似合うウッディな住まい。念願の薪ストーブは広々とした玄関土間に設置。隣にはたくさんのキャンプ道具などが仕舞える土間収納を設けた。玄関土間とダイニングの間につくった目隠し用の格子は、担当者の提案を採用したもの。ロードバイクを掛けられるようにして、機能性とインテリア性を両立しているのも参考にしたいポイントだ。アイランドキッチンを中心とした便利な動線や、小上がりの畳コーナーでくつろぐ家族にも目が届く間取りは、夫人の希望を叶えたもの。木目調のサイディングやカバードポーチ、屋根からのぞく煙突などでアウトドア感を演出した外観や、2階ホールの読書コーナーなど、細部までこだわりを叶えた満足度の高い住まいとなった。「木のぬくもりや、薪ストーブの炎に癒される暮らしを満喫しています。親身で小回りのきく対応のおかげで、楽しく安心して家づくりができました」とお喜びだ。

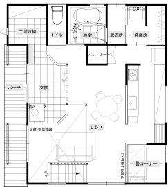
間取り図(2LDK)

1階
綿半林業 【2000万円台前半/36坪/薪ストーブ/無垢材】家族でおうちキャンプが楽しめる念願の薪ストーブが似合う家の間取り図(2LDK)1階
2階
綿半林業 【2000万円台前半/36坪/薪ストーブ/無垢材】家族でおうちキャンプが楽しめる念願の薪ストーブが似合う家の間取り図(2LDK)2階
この会社をもっと知りたくなったら
無料でお届け!まずはカタログ請求

内外観ギャラリー

この会社をもっと知りたくなったら
無料でお届け!まずはカタログ請求

この会社の他の建築実例を見る

この建築実例が気になった方へおすすめ

この建築実例の詳細情報

この建築実例を建てた店舗情報

店舗名 お客様係
住所 静岡県浜松市中央区萩丘3-1-10
問い合わせ
0120-025-152
  • ※営業時間内の対応となります。

  • ※お問い合わせの際は「SUUMO(スーモ)を見て」とお伝え下さい。

ホームページ この会社のホームページへ

綿半林業のコンテンツ一覧

お問い合わせ

カタログをもらう
カタログ一覧
※1社で請求できるカタログは3冊までです。

この会社が気になったら

カタログをもらう

関連キーワード

ページトップへ戻る