アサヒアレックス

アサヒアレックス

お客様の暮らしのすべてを心でささえ、「心あたたまる幸せな暮らし」をご提供
お気に入りに追加する
宮城県仙台市若林区  Aさん
【本体価格2620万円】多彩な素材を活かした家。コントラストが美しく、リゾートで過ごすような安らぎを演出
アサヒアレックス 【本体価格2620万円】多彩な素材を活かした家。コントラストが美しく、リゾートで過ごすような安らぎを演出の建築実例画像1
  • 本体価格
    2,620万円
    68.6万円/坪
  • 延床面積
    126.28m2 (38.1坪)
    敷地面積
    -
    家族構成
    夫婦+子ども1人
  • 竣工年月
    2018年7月
    工法
    木造軸組
この会社をもっと知りたくなったら
無料でお届け!まずはカタログ請求

施主Aさんのこだわり

オーガニック素材でつくる上質な空間。時間ごと変化する表情が暮らしを豊かに

木や石、土、鉄など、多彩な本物の素材を使用した個性的な住まいが実現。リビング・ダイニングの内装は『家の中でリゾートの雰囲気を』というテーマでコーディネートしています。正面の壁材には天然木を貼り上げたウッドタイルを採用。天然木で立体感のある素材が木の幹のような背景となり、観葉植物や飾り棚のグリーンと相性良く自然のコントラストを生み出しています。無垢のフローリングにはアカシアを使用。足に触れた時のひんやりとした感触が少ないので、素足でもとても心地いいです。天井… 続きを読む

木や石、土、鉄など、多彩な本物の素材を使用した個性的な住まいが実現。リビング・ダイニングの内装は『家の中でリゾートの雰囲気を』というテーマでコーディネートしています。正面の壁材には天然木を貼り上げたウッドタイルを採用。天然木で立体感のある素材が木の幹のような背景となり、観葉植物や飾り棚のグリーンと相性良く自然のコントラストを生み出しています。無垢のフローリングにはアカシアを使用。足に触れた時のひんやりとした感触が少ないので、素足でもとても心地いいです。天井は武骨な防火ボードをむき出しにすることで少しアンティークな雰囲気に。真っ白な壁に、それぞれの素材が織りなすコントラストは非日常感を演出し、リゾートで過ごすような安らぎに包まれる空間になっています。

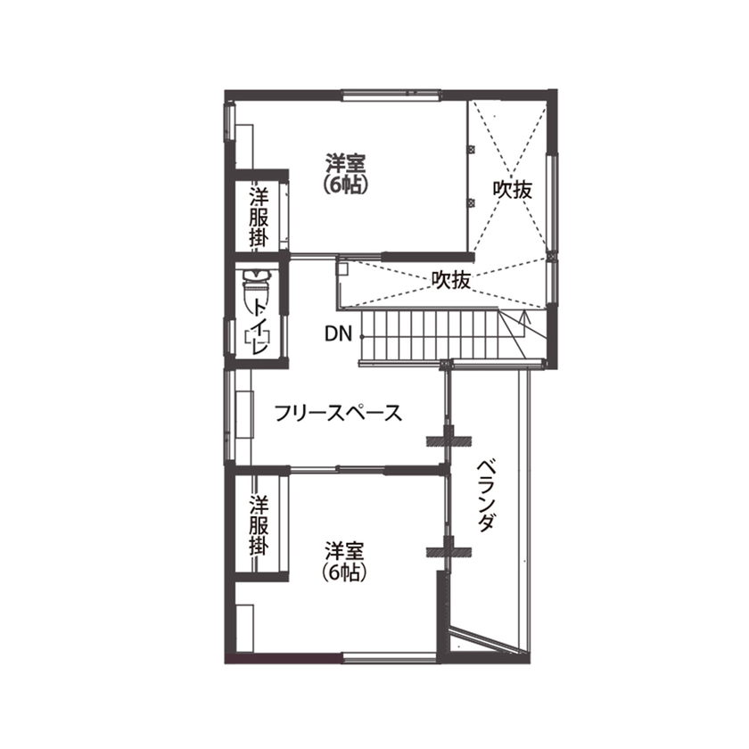
間取り図(3LDK)

1階
アサヒアレックス 【本体価格2620万円】多彩な素材を活かした家。コントラストが美しく、リゾートで過ごすような安らぎを演出の間取り図(3LDK)1階
2階
アサヒアレックス 【本体価格2620万円】多彩な素材を活かした家。コントラストが美しく、リゾートで過ごすような安らぎを演出の間取り図(3LDK)2階
この会社をもっと知りたくなったら
無料でお届け!まずはカタログ請求

内外観ギャラリー

この会社をもっと知りたくなったら
無料でお届け!まずはカタログ請求

この会社の他の建築実例を見る

この建築実例が気になった方へおすすめ

この建築実例の詳細情報

この建築実例を建てた店舗情報

住所 新潟県新潟市中央区美咲町1-9-48
問い合わせ
025-285-1112
  • ※営業時間内の対応となります。

  • ※お問い合わせの際は「SUUMO(スーモ)を見て」とお伝え下さい。

ホームページ この会社のホームページへ

アサヒアレックスのコンテンツ一覧

お問い合わせ

カタログをもらう
総合カタログ
アサヒアレックスのカタログ(アサヒアレックス プロミスブック)
アサヒアレックス プロミスブック
問合コード:1050670002
お問い合わせ先
025-285-1112
  • ※営業時間内の対応となります。

  • ※お問い合わせの際は「SUUMO(スーモ)を見て」とお伝え下さい。

  • 新潟県新潟市中央区美咲町1-9-48

  • 定休日:水曜・木曜

この会社のホームページへ

この会社が気になったら

カタログをもらう
総合カタログ
アサヒアレックスのカタログ(アサヒアレックス プロミスブック)
アサヒアレックス プロミスブック
問合コード:1050670002

関連キーワード

この建築実例のその他の特徴
ページトップへ戻る