アイダ設計

アイダ設計

心とお財布にゆとりが生まれる、999万円×高品質×自由設計の家。建て替えも応援!
お気に入りに追加する
千葉県南房総市  Iさん
【リゾートライフ/間取り図有/20坪台/趣味】家族で休暇を過ごす海前の別荘
  • 本体価格
    -
  • 延床面積
    93.56m2 (28.3坪)
    敷地面積
    294.59m2 (89.1坪)
    家族構成
    -
    竣工年月
    -
    工法
    木造軸組
  • 特徴
    耐震・免震・制震  |  2階建て  |  省エネ・創エネ・エコ(eco)  |  収納充実  |  家事がラク  |  高耐久  |  高気密・高断熱  |  …
この会社をもっと知りたくなったら
無料でお届け!まずはカタログ請求

施主Iさんのこだわり

20年来の夢だった海辺の別荘。休日休暇に「行ってみたい」気持ちになる非日常を実現

サーフィンが大好きで、20年くらい前から海の近くに移住するか別荘を建てたい、という想いをあたためてきました。結果、別荘を建てることにしたのですが、サーフィンをした後に休憩ができるウッドデッキもあって、そこで家族がワイワイしながら過ごす、という理想の別荘ライフが実現できています。近くにはテニスコートもあって、家族ぐるみでテニスを楽しんでもいます。「別荘を建てる」となると、やはり「非日常」を追求した方がいいと考えましたし、だからこそ休日休暇に「行ってみよう」と… 続きを読む

サーフィンが大好きで、20年くらい前から海の近くに移住するか別荘を建てたい、という想いをあたためてきました。結果、別荘を建てることにしたのですが、サーフィンをした後に休憩ができるウッドデッキもあって、そこで家族がワイワイしながら過ごす、という理想の別荘ライフが実現できています。近くにはテニスコートもあって、家族ぐるみでテニスを楽しんでもいます。「別荘を建てる」となると、やはり「非日常」を追求した方がいいと考えましたし、だからこそ休日休暇に「行ってみよう」という気持ちになるのだと思います。そういう意味では、たとえば海辺の家だからと瓦屋根を採用してみたり、内装でもあえて梁を入れて自宅と違う感じにしてみたりと、「完全自由設計」だからこそ実現できたことがたくさんあって、非常に満足しています。

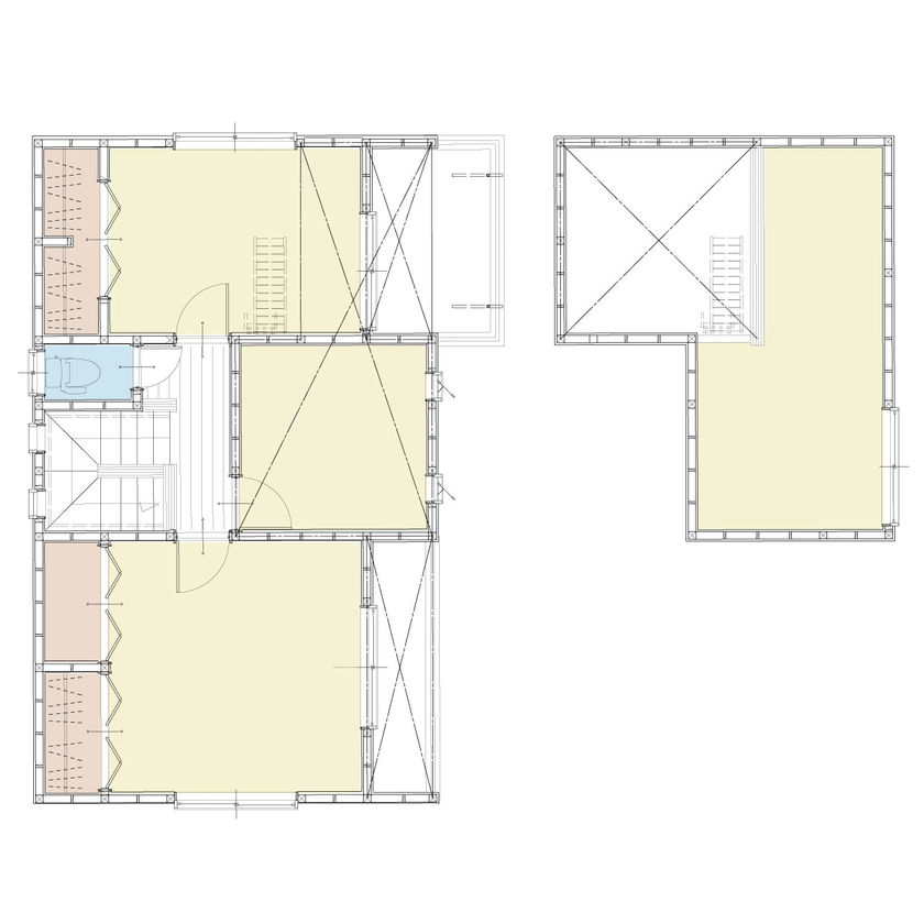
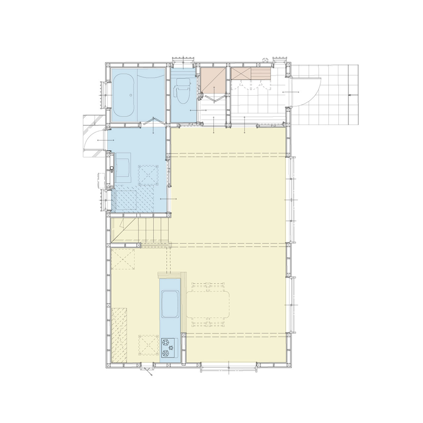
間取り図(3LDK)

1階
アイダ設計 【リゾートライフ/間取り図有/20坪台/趣味】家族で休暇を過ごす海前の別荘の間取り図(3LDK)1階

2階
アイダ設計 【リゾートライフ/間取り図有/20坪台/趣味】家族で休暇を過ごす海前の別荘の間取り図(3LDK)2階

この会社をもっと知りたくなったら
無料でお届け!まずはカタログ請求

内外観ギャラリー

この会社をもっと知りたくなったら
無料でお届け!まずはカタログ請求

施主Iさんがこの会社に決めた理由

夢の「別荘」が実現できそうな完全自由設計だったことと、営業担当が誠実だったこと

「アイダ設計を選んだのは、『完全自由設計』だったことが一番の理由。それに営業担当の方がものすごく誠実で、親身になってくれたのが大きかった」とIさんご夫妻は、夢の「別荘」建築中の頃を振り返りながら、満面の笑みを浮かべて語ってくれる。「家の中の大きさはこれくらいで、間取りは1階はリビングだけ、2階には3部屋を配置して、ロフトをつけてもらいたい、という要望を出したら、スピーディーに複数の設計案を出してきてくれた。私たちのために動いてくれている印象が、とても強かっ… 続きを読む

「アイダ設計を選んだのは、『完全自由設計』だったことが一番の理由。それに営業担当の方がものすごく誠実で、親身になってくれたのが大きかった」とIさんご夫妻は、夢の「別荘」建築中の頃を振り返りながら、満面の笑みを浮かべて語ってくれる。「家の中の大きさはこれくらいで、間取りは1階はリビングだけ、2階には3部屋を配置して、ロフトをつけてもらいたい、という要望を出したら、スピーディーに複数の設計案を出してきてくれた。私たちのために動いてくれている印象が、とても強かったですね」(Iさんご夫妻)外観をどうするか、というフェーズでも「いくつかの物件を見学させてもらって、参考にさせてもらった」のだとか。さらには「海辺の家だから、瓦屋根の方がいい」などと、的確なアドバイスをいくつもしてもらえたのがうれしかったそうである。「言い過ぎかもしれないけど、この別荘に遊びに来ると、カリフォルニアに来た気分になれる(笑)そんな『非日常』を味わえるのは、アイダ設計の完全自由設計と営業担当の方の誠実さのおかげだと思っています」(Iさんご夫妻)

この会社の他の建築実例を見る

この建築実例が気になった方へおすすめ

この建築実例の詳細情報

アイダ設計のコンテンツ一覧

お問い合わせ

カタログをもらう
カタログ一覧

この会社が気になったら

カタログをもらう

関連キーワード

この建築実例のその他の特徴
4人家族  |  アメリカン  |  ベーシック  |  地中海  |  洋風モダン  |  スタイリッシュ  |  南欧  |  おしゃれ  |  開放感  |  重厚感  |  落ち着き  |  かっこいい  |  クール  |  男前  |  24時間換気システム  |  窓が多い  |  別荘  |  30代で建てた家
ページトップへ戻る