アイダ設計

アイダ設計

心とお財布にゆとりが生まれる、999万円×高品質×自由設計の家。建て替えも応援!
お気に入りに追加する
静岡県静岡市  Hさん
【狭小地/3階建て/間取り図有/20坪台/耐震】約15坪の狭小地に建てた3階建ての事務所兼住宅
  • 本体価格
    -
  • 延床面積
    89.09m2 (26.9坪)
    敷地面積
    47.87m2 (14.4坪)
    家族構成
    -
    竣工年月
    -
    工法
    木造軸組
  • 特徴
    耐震・免震・制震  |  高耐久  |  高気密・高断熱  |  高耐火  |  シンプルモダン  |  防音・遮音  |  通風・採光  |  料理を楽しむ  |  …
この会社をもっと知りたくなったら
無料でお届け!まずはカタログ請求

施主Hさんのこだわり

駅徒歩5分の約15坪の狭小地に3階建てを建てることを前提に理想の事務所兼住居を実現

事務所兼住居にしたいと思い、駅から徒歩5分という絶好のロケーションで約15坪の土地が出てきた瞬間に、即決で購入しました。なので「狭小地に3階建ての建物を建てる」ことが、大前提になりました。一番こだわったのは、一階部分にある研修室。土地の大きさが限られている中で、いかに広く活用できるかを考えて、窓をホワイトボードにして利用するなどの工夫を凝らしました。2階・3階の住居部分は、いかに快適に過ごせるか、を中心に考えました。特に寝室と客間を配置した3階部分について… 続きを読む

事務所兼住居にしたいと思い、駅から徒歩5分という絶好のロケーションで約15坪の土地が出てきた瞬間に、即決で購入しました。なので「狭小地に3階建ての建物を建てる」ことが、大前提になりました。一番こだわったのは、一階部分にある研修室。土地の大きさが限られている中で、いかに広く活用できるかを考えて、窓をホワイトボードにして利用するなどの工夫を凝らしました。2階・3階の住居部分は、いかに快適に過ごせるか、を中心に考えました。特に寝室と客間を配置した3階部分については、駅前の立地ということもあって建物が密集しているため、明り取りの窓を多めに設置することで昼間でも明るい室内を実現しました。今後は「こだわり」の研修室を有効活用して、数多くのコンサルティングを実施していきたいと考えています。

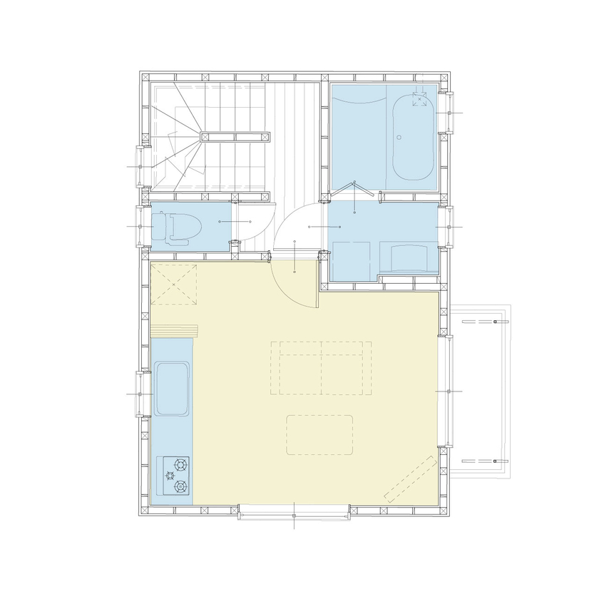
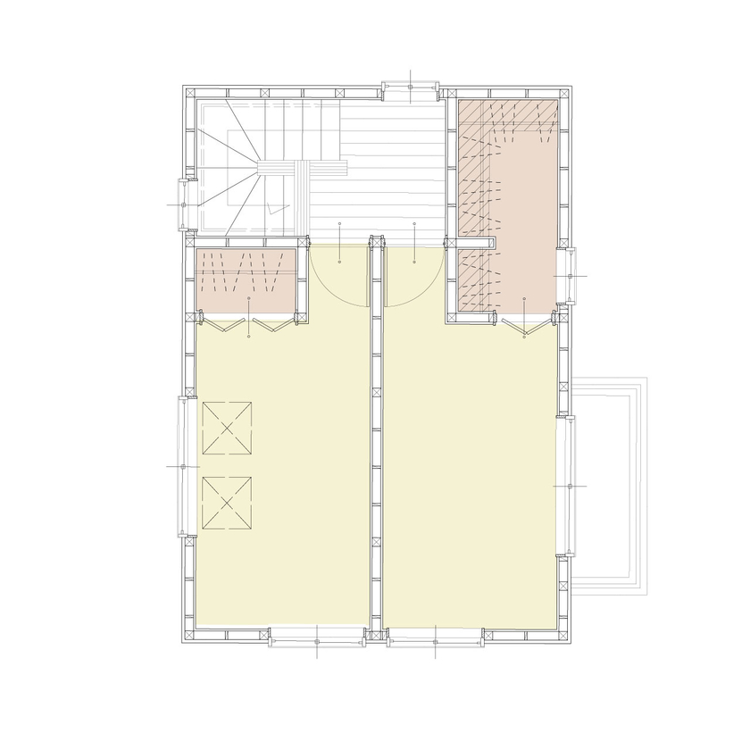
間取り図(3LDK)

1階
アイダ設計 【狭小地/3階建て/間取り図有/20坪台/耐震】約15坪の狭小地に建てた3階建ての事務所兼住宅の間取り図(3LDK)1階

2階
アイダ設計 【狭小地/3階建て/間取り図有/20坪台/耐震】約15坪の狭小地に建てた3階建ての事務所兼住宅の間取り図(3LDK)2階

3階
アイダ設計 【狭小地/3階建て/間取り図有/20坪台/耐震】約15坪の狭小地に建てた3階建ての事務所兼住宅の間取り図(3LDK)3階

この会社をもっと知りたくなったら
無料でお届け!まずはカタログ請求

内外観ギャラリー

この会社をもっと知りたくなったら
無料でお届け!まずはカタログ請求

施主Hさんがこの会社に決めた理由

モデルハウスを見学し、狭小地に事務所兼住居を建てられると感じたから

「アイダ設計のモデルハウスを見学して、これなら狭小地に3階建てを建てることができそうだ、と感じたのが大きかった」と語るHさん。駅から徒歩5分の好立地、だけど約15坪という狭小地を早々に取得し、そこに事務所兼住居を建てられるハウスメーカーを選ぶことが、Hさんにとって至上命題となった。「RC造も検討しましたが、できるだけ早く完成させたいという想いもあり、工期を考えると現実味を感じられなかった。木造がメインの他のハウスメーカーも検討しましたが、私の理想を実現する… 続きを読む

「アイダ設計のモデルハウスを見学して、これなら狭小地に3階建てを建てることができそうだ、と感じたのが大きかった」と語るHさん。駅から徒歩5分の好立地、だけど約15坪という狭小地を早々に取得し、そこに事務所兼住居を建てられるハウスメーカーを選ぶことが、Hさんにとって至上命題となった。「RC造も検討しましたが、できるだけ早く完成させたいという想いもあり、工期を考えると現実味を感じられなかった。木造がメインの他のハウスメーカーも検討しましたが、私の理想を実現するのにもっとも最短距離にあると感じられたのが、アイダ設計のモデルハウスでした」(Hさん)価格的にも大いに魅力があり、耐震のためのダンパーを12箇所に設置できたことも「満足度が高い」という。企業コンサルティングを事業とした会社経営者であると同時に、バレーボールの指導者としてタイの子どもたちにも定期的に指導しているというHさんは「1階の研修室を有効活用して、より一層の社会貢献をしたい」と決意を新たにしている。

この会社の他の建築実例を見る

この建築実例が気になった方へおすすめ

この建築実例の詳細情報

アイダ設計のコンテンツ一覧

お問い合わせ

カタログをもらう
カタログ一覧

この会社が気になったら

カタログをもらう

関連キーワード

この建築実例のその他の特徴
ページトップへ戻る