アイダ設計

アイダ設計

心とお財布にゆとりが生まれる、999万円×高品質×自由設計の家。建て替えも応援!
お気に入りに追加する
静岡県伊東市  Yさん
【間取り図有/30坪台/ウッドデッキ】価格と間取りのバランスに驚き 趣味のバラを愛でられる庭のある家
  • 本体価格
    -
  • 延床面積
    106.82m2 (32.3坪)
    敷地面積
    -
    家族構成
    -
    竣工年月
    -
    工法
    木造軸組
  • 特徴
    耐震・免震・制震  |  2階建て  |  省エネ・創エネ・エコ(eco)  |  収納充実  |  家事がラク  |  高耐久  |  高気密・高断熱  |  …
この会社をもっと知りたくなったら
無料でお届け!まずはカタログ請求

施主Yさんのこだわり

友達に見せたら値段と建てた家の大きさを見て驚いていました

前の家は築約60年で、湿気がすごくて日当たりは悪いし、雨漏りも酷かったので新しい家を建てることにしました。同級生が建てたアイダ設計の家を見て、私たちもアイダ設計で家を建てることに決めました。家の設計は営業の方が親身に考えてくれて、こうしたら良いんじゃないか、とアイデアをたくさんもらい話し合って決めました。2階には部屋があり、今は10帖で1部屋にしています。家族が大きくなった時、仕切って部屋を分けれるように扉を2個設置してもらいました。また、陽当たりを考えて… 続きを読む

前の家は築約60年で、湿気がすごくて日当たりは悪いし、雨漏りも酷かったので新しい家を建てることにしました。同級生が建てたアイダ設計の家を見て、私たちもアイダ設計で家を建てることに決めました。家の設計は営業の方が親身に考えてくれて、こうしたら良いんじゃないか、とアイデアをたくさんもらい話し合って決めました。2階には部屋があり、今は10帖で1部屋にしています。家族が大きくなった時、仕切って部屋を分けれるように扉を2個設置してもらいました。また、陽当たりを考えて窓を大きくしてもらいました。外観は全体的に白をイメージしてもらい、庭は大きく取ってもらっています。庭でバラを育てているので、バラが咲くのが楽しみです。建築士の方や職人の方が、何かある度に連絡をくれてしっかりしていたので安心することが出来ました。友達は値段と建てた家の大きさを見て驚いていましたね。私たちの「こうしたい」という相談に親身にのってくれたので、アイダ設計で家を建てて良かったと思います。

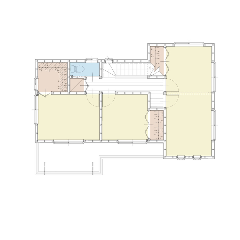
間取り図(4LDK)

1階
アイダ設計 【間取り図有/30坪台/ウッドデッキ】価格と間取りのバランスに驚き 趣味のバラを愛でられる庭のある家の間取り図(4LDK)1階

2階
アイダ設計 【間取り図有/30坪台/ウッドデッキ】価格と間取りのバランスに驚き 趣味のバラを愛でられる庭のある家の間取り図(4LDK)2階

この会社をもっと知りたくなったら
無料でお届け!まずはカタログ請求

内外観ギャラリー

この会社をもっと知りたくなったら
無料でお届け!まずはカタログ請求

施主Yさんがこの会社に決めた理由

同級生がアイダ設計で家を建てていた。同級生は良心的な価格と建物の規模に驚いていた

「一番の理由は、同級生がアイダ設計で家を建てていたこと」と語るのは、Yさんご夫妻のご主人である。しかもその同級生の方は「良心的な価格と、それに比して大きな規模の建物が建てられたことに驚いていた」そうで、だったら自分たちの家を建てるにもアイダ設計を選んで間違いはない、と判断されたのだとか。「土地の形状などから、建物がL字型のようにならざるを得なかったのですが、『だったらこんな設計にしたらいいのでは』という的確な提案を営業担当の方にしていただけたのはとてもよか… 続きを読む

「一番の理由は、同級生がアイダ設計で家を建てていたこと」と語るのは、Yさんご夫妻のご主人である。しかもその同級生の方は「良心的な価格と、それに比して大きな規模の建物が建てられたことに驚いていた」そうで、だったら自分たちの家を建てるにもアイダ設計を選んで間違いはない、と判断されたのだとか。「土地の形状などから、建物がL字型のようにならざるを得なかったのですが、『だったらこんな設計にしたらいいのでは』という的確な提案を営業担当の方にしていただけたのはとてもよかった」(Yさんご夫妻)さらには日当たりを考えてリビングの窓は大きめにしたらどうか、2階の子ども部屋は10畳にして将来は間仕切りをして分けられるようにしたらどうか、などなど、ご夫妻が「なるほど」と納得できるような提案を繰り返しもらえた、という。「何かしら確認が必要なことがあった時には、設計担当の建築士の方や職人の方からもすぐに連絡をいただけて、いつでも連絡が取れるという安心感もあった。みなさんから親身にしていただけた実感がありましたね」(Yさんご夫妻)

この会社の他の建築実例を見る

この建築実例が気になった方へおすすめ

この建築実例の詳細情報

アイダ設計のコンテンツ一覧

お問い合わせ

カタログをもらう
カタログ一覧

この会社が気になったら

カタログをもらう

関連キーワード

この建築実例のその他の特徴
ページトップへ戻る