昭和住宅

昭和住宅

【北九州】住むほどに愛着が深まる。創業から50年以上続く、地元無垢材で建てる家
お気に入りに追加する
福岡県北九州市小倉南区  Uさん
【北九州市小倉南区/3253万円/間取図有】贅を尽くした木の住まい 随所に光る職人技に感動する平屋
昭和住宅 【北九州市小倉南区/3253万円/間取図有】贅を尽くした木の住まい 随所に光る職人技に感動する平屋の建築実例画像1
  • 本体価格
    3,253万円
    83.0万円/坪
  • 延床面積
    129.63m2 (39.2坪)
    敷地面積
    304.84m2 (92.2坪)
    家族構成
    夫婦
  • 竣工年月
    2018年7月
    工法
    木造軸組
この会社をもっと知りたくなったら
無料でお届け!まずはカタログ請求

施主Uさんのこだわり

「こんな細かい事言っていいんですか?」「何でも言って下さい」で完成しました(笑)

おばあちゃんが所有していた、街中の古くなった実家を建て替えることとなったUさん。近くにお住いの妹様ご夫婦も、この機会にと姉妹で昭和住宅に建築を依頼。ご主人の仕事は設計業務の為、素材や納まりなど、建築関係の仕事ではないもののほぼ熟知されている。その考えに、昭和住宅の木の使い方が相まって完成した平屋の家は、Uさんの思いが各所に現れている。「大きな希望は大屋根の平屋。実家になるので仏事が出来るしっかりとした和室が必要。トイレは来客用とプライベートと2つ。帰ってす… 続きを読む

おばあちゃんが所有していた、街中の古くなった実家を建て替えることとなったUさん。近くにお住いの妹様ご夫婦も、この機会にと姉妹で昭和住宅に建築を依頼。ご主人の仕事は設計業務の為、素材や納まりなど、建築関係の仕事ではないもののほぼ熟知されている。その考えに、昭和住宅の木の使い方が相まって完成した平屋の家は、Uさんの思いが各所に現れている。「大きな希望は大屋根の平屋。実家になるので仏事が出来るしっかりとした和室が必要。トイレは来客用とプライベートと2つ。帰ってすぐ手洗いしたい。平屋でも出来るリビングの吹き抜け。後はふんだんに木を使うこと。細かいことは…」と笑みがこぼれる。スタッフと職人との良好な関係が見て取れる。外観はシンプルなモノトーンの大屋根の和モダンテイスト。室内は木の大好きなご夫婦が、恐らくご希望されたであろう造形があちこちに。「いろいろ調べて決めたセルロースファイバー断熱と室内の木の香りで、あまりエアコンも使わなくて済む健康的で快適な生活を送っています」。間もなく新しい家族が増えるUさんファミリーの、朝起きたら毎日が森林浴という大満足の暮らしを想像すると期待が膨らむ

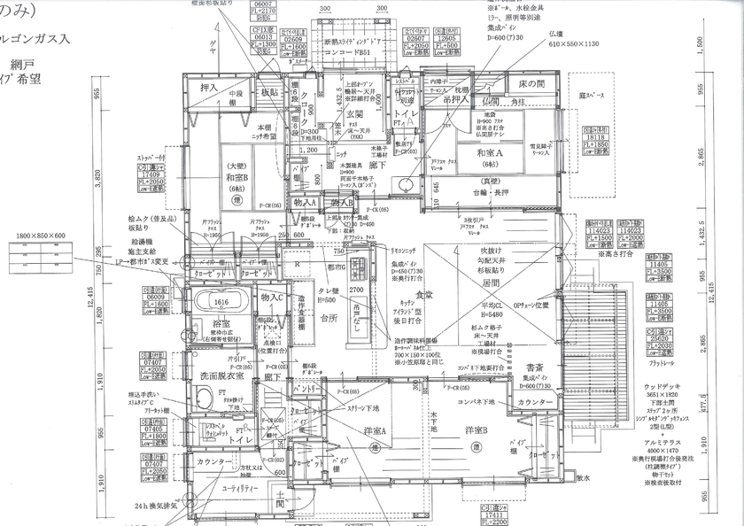
間取り図(4LDK+ユーティリティ)

1階
昭和住宅 【北九州市小倉南区/3253万円/間取図有】贅を尽くした木の住まい 随所に光る職人技に感動する平屋の間取り図(4LDK+ユーティリティ)1階
この会社をもっと知りたくなったら
無料でお届け!まずはカタログ請求

内外観ギャラリー

この会社をもっと知りたくなったら
無料でお届け!まずはカタログ請求

この会社の他の建築実例を見る

この建築実例が気になった方へおすすめ

  • この建築実例のカタログをもらう

    昭和住宅のカタログ画像
    施工実例集
    過去事例の間取り図・価格を知れる!昭和住宅の実例集
    昭和住宅の総合カタログです。
  • モデルハウスを見学する

    昭和住宅のモデルハウス画像1
    昭和住宅のモデルハウス画像2
    • 延床面積
      131.33m239.7坪)
    • 所在地
      福岡県北九州市八幡西区町上津役西4-2-16
    • 営業時間
      10:00~17:00(定休日:お盆、年末年始)
    • ナチュラル
    • 和モダン
    • 子育て
    • 外と繋がる
  • イベントに参加する

    昭和住宅のイベント画像
    【事前予約/八幡西区】無垢材の家は高いと諦めてない?予算内で叶える、心地よい暮らし発見プラン相談会
    • 設計・資金相談会
    • 完成見学会
    • 土地相談会
    開催日
    随時
    開催場所
    福岡県北九州市八幡西区町上津役西4-2-16

この建築実例の詳細情報

この建築実例を建てた店舗情報

住所 福岡県北九州市八幡西区町上津役西4-2-16
問い合わせ
093-612-0228
  • ※営業時間内の対応となります。

  • ※お問い合わせの際は「SUUMO(スーモ)を見て」とお伝え下さい。

ホームページ この会社のホームページへ

昭和住宅のコンテンツ一覧

お問い合わせ

カタログをもらう
施工実例集
昭和住宅のカタログ(過去事例の間取り図・価格を知れる!昭和住宅の実例集)
過去事例の間取り図・価格を知れる!昭和住宅の実例集
問合コード:1016380001
イベントに参加する
お問い合わせ先
093-612-0228
  • ※営業時間内の対応となります。

  • ※お問い合わせの際は「SUUMO(スーモ)を見て」とお伝え下さい。

  • 福岡県北九州市八幡西区町上津役西4-2-16

  • 定休日:なし

この会社のホームページへ

この会社が気になったら

カタログをもらう
施工実例集
昭和住宅のカタログ(過去事例の間取り図・価格を知れる!昭和住宅の実例集)
過去事例の間取り図・価格を知れる!昭和住宅の実例集
問合コード:1016380001
イベントに参加する

関連キーワード

この建築実例のその他の特徴
ページトップへ戻る