昭和住宅

昭和住宅

【北九州】住むほどに愛着が深まる。創業から50年以上続く、地元無垢材で建てる家
お気に入りに追加する
福岡県北九州市小倉北区  Hさん
【北九州市小倉北区/2762万円/間取図有】ウッドデッキを囲むH型プラン センターコートで明るい平屋
昭和住宅 【北九州市小倉北区/2762万円/間取図有】ウッドデッキを囲むH型プラン センターコートで明るい平屋の建築実例画像1
  • 本体価格
    2,762万円
    84.9万円/坪
  • 延床面積
    107.65m2 (32.5坪)
    敷地面積
    269.02m2 (81.3坪)
    家族構成
    夫婦+子ども1人
  • 竣工年月
    2019年7月
    工法
    木造軸組
この会社をもっと知りたくなったら
無料でお届け!まずはカタログ請求

施主Hさんのこだわり

防犯とプライバシーに配慮したスクリーンを中庭に設置 街中でものびのび安心子育て

Hさんご家族と昭和住宅との最初の出会いはSUUMOの資料請求だった。自然素材と地元工務店という基準で選び数社に絞ったところ、希望エリアの土地についての情報の早さ、モデルハウスでの木の雰囲気に納得できたところ、的確なプラン提案などが決め手になったとのこと。将来を考え絶対平屋、デッキを囲むセンターコートの間取り、ふんだんに木を使った室内空間、シャープな外観スタイル…。条件を伝え出来上がったのはH型の図面。「すべてがイメージ通りでした」。2ウェイの寝室やセパレー… 続きを読む

Hさんご家族と昭和住宅との最初の出会いはSUUMOの資料請求だった。自然素材と地元工務店という基準で選び数社に絞ったところ、希望エリアの土地についての情報の早さ、モデルハウスでの木の雰囲気に納得できたところ、的確なプラン提案などが決め手になったとのこと。将来を考え絶対平屋、デッキを囲むセンターコートの間取り、ふんだんに木を使った室内空間、シャープな外観スタイル…。条件を伝え出来上がったのはH型の図面。「すべてがイメージ通りでした」。2ウェイの寝室やセパレートにした洗面室と脱衣室、アイランドキッチンを採用したことなど、回遊性のある動線が想像以上に快適。奥様が「キッチンに立っていながら家族の動きがわかるので、ホントにストレスないです」とこぼすのもよくわかる。セルロースファイバー断熱のおかげで夏にエアコン1台で過ごせたHさんファミリーは、冬の暖房にも期待されていて削減された光熱費で何をしようか、話し合われている

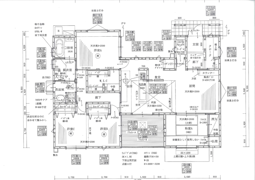
間取り図(4LDK)

1階
昭和住宅 【北九州市小倉北区/2762万円/間取図有】ウッドデッキを囲むH型プラン センターコートで明るい平屋の間取り図(4LDK)1階
この会社をもっと知りたくなったら
無料でお届け!まずはカタログ請求

内外観ギャラリー

この会社をもっと知りたくなったら
無料でお届け!まずはカタログ請求

この会社の他の建築実例を見る

この建築実例が気になった方へおすすめ

  • この建築実例のカタログをもらう

    昭和住宅のカタログ画像
    施工実例集
    過去事例の間取り図・価格を知れる!昭和住宅の実例集
    昭和住宅の総合カタログです。
  • モデルハウスを見学する

    昭和住宅のモデルハウス画像1
    昭和住宅のモデルハウス画像2
    • 延床面積
      131.33m239.7坪)
    • 所在地
      福岡県北九州市八幡西区町上津役西4-2-16
    • 営業時間
      10:00~17:00(定休日:お盆、年末年始)
    • ナチュラル
    • 和モダン
    • 子育て
    • 外と繋がる
  • イベントに参加する

    昭和住宅のイベント画像
    【事前予約/八幡西区】無垢材の家は高いと諦めてない?予算内で叶える、心地よい暮らし発見プラン相談会
    • 設計・資金相談会
    • 完成見学会
    • 土地相談会
    開催日
    随時
    開催場所
    福岡県北九州市八幡西区町上津役西4-2-16

この建築実例の詳細情報

この建築実例を建てた店舗情報

住所 福岡県北九州市八幡西区町上津役西4-2-16
問い合わせ
093-612-0228
  • ※営業時間内の対応となります。

  • ※お問い合わせの際は「SUUMO(スーモ)を見て」とお伝え下さい。

ホームページ この会社のホームページへ

昭和住宅のコンテンツ一覧

お問い合わせ

カタログをもらう
施工実例集
昭和住宅のカタログ(過去事例の間取り図・価格を知れる!昭和住宅の実例集)
過去事例の間取り図・価格を知れる!昭和住宅の実例集
問合コード:1016380001
イベントに参加する
お問い合わせ先
093-612-0228
  • ※営業時間内の対応となります。

  • ※お問い合わせの際は「SUUMO(スーモ)を見て」とお伝え下さい。

  • 福岡県北九州市八幡西区町上津役西4-2-16

  • 定休日:なし

この会社のホームページへ

この会社が気になったら

カタログをもらう
施工実例集
昭和住宅のカタログ(過去事例の間取り図・価格を知れる!昭和住宅の実例集)
過去事例の間取り図・価格を知れる!昭和住宅の実例集
問合コード:1016380001
イベントに参加する

関連キーワード

ページトップへ戻る