昭和住宅

昭和住宅

【北九州】住むほどに愛着が深まる。創業から50年以上続く、地元無垢材で建てる家
お気に入りに追加する
福岡県北九州市八幡西区  Yさん
【北九州市八幡西区/2274万円/間取図有】限られた敷地に、ゆとりの平屋 設計の工夫で叶えた快適空間
昭和住宅 【北九州市八幡西区/2274万円/間取図有】限られた敷地に、ゆとりの平屋 設計の工夫で叶えた快適空間の建築実例画像1
  • 本体価格
    2,274万円
    82.8万円/坪
  • 延床面積
    90.80m2 (27.4坪)
    敷地面積
    210.19m2 (63.5坪)
    家族構成
    夫婦
  • 竣工年月
    工法
    木造軸組
この会社をもっと知りたくなったら
無料でお届け!まずはカタログ請求

施主Yさんのこだわり

狭小地でもなんのその! 0からのプラン作りだからこそ実現できた光と風

永いマンション暮らしから、老後に向けて人との繋がりを大切にしたいと思い、地元に戻り実家の建て替えを考えたYさん。スーモカウンターからの紹介で昭和住宅と出会う。「冬に寒くない夏熱くない断熱性能の高い家がいい…」コンセプトハウスを訪れ、本物の木の良さとセルロースファイバー断熱の効果を確認したYさん夫婦は、プランニングと見積もり提案を依頼。ただ懸念事項があった。「ちょっと土地が細長いのですが、平屋を建てることは可能ですか?」の問いに、スタッフの「自由設計なので大… 続きを読む

永いマンション暮らしから、老後に向けて人との繋がりを大切にしたいと思い、地元に戻り実家の建て替えを考えたYさん。スーモカウンターからの紹介で昭和住宅と出会う。「冬に寒くない夏熱くない断熱性能の高い家がいい…」コンセプトハウスを訪れ、本物の木の良さとセルロースファイバー断熱の効果を確認したYさん夫婦は、プランニングと見積もり提案を依頼。ただ懸念事項があった。「ちょっと土地が細長いのですが、平屋を建てることは可能ですか?」の問いに、スタッフの「自由設計なので大丈夫です。すぐ現地確認してプランを考えてみましょう」との回答に安心したという。出来上がった間取りは光と風を取り入れるため配置したセンターコートのあるコの字型のプラン。「的確な設計理由と将来の生活を想定したアドバイスを頂き、信頼してお任せ出来ました」。当時店舗として利用していた実家の思い入れのあるカウンターを、新しく建て替える住まいのどこかに使えないかという相談をしたことや、メインの床をコンセプトハウスに貼ってある数種の床材の中から悩んで決定したことなどを、アフター訪問の際にスタッフと懐かしく語り合うYさんご家族。気さくなご主人と笑顔の素敵な奥様と、新しく生まれたお孫さんとのやり取りが目に浮かぶ

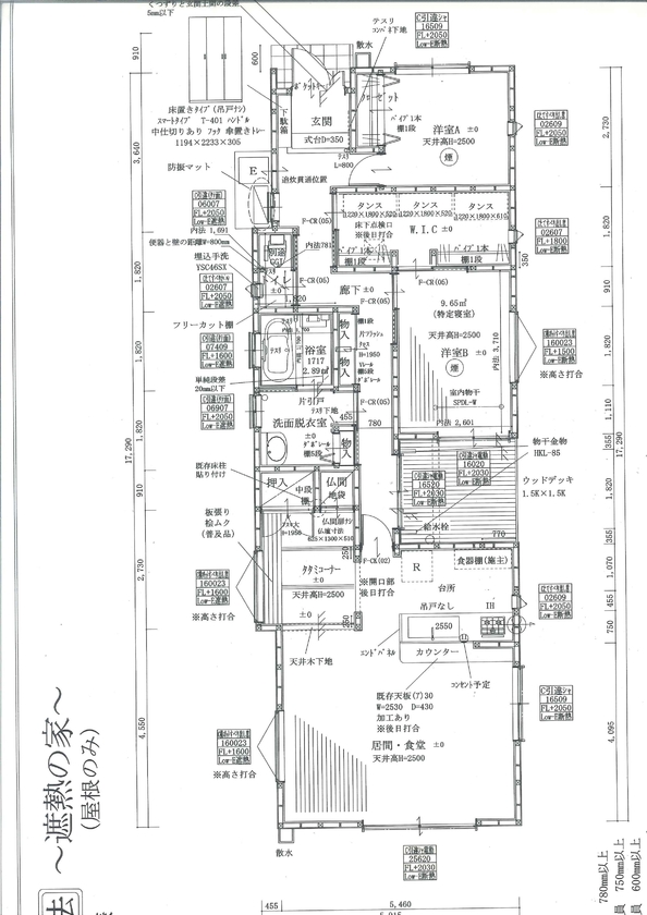
間取り図(2LDK+タタミコーナー)

1階
昭和住宅 【北九州市八幡西区/2274万円/間取図有】限られた敷地に、ゆとりの平屋 設計の工夫で叶えた快適空間の間取り図(2LDK+タタミコーナー)1階
この会社をもっと知りたくなったら
無料でお届け!まずはカタログ請求

内外観ギャラリー

この会社をもっと知りたくなったら
無料でお届け!まずはカタログ請求

この会社の他の建築実例を見る

この建築実例が気になった方へおすすめ

  • この建築実例のカタログをもらう

    昭和住宅のカタログ画像
    施工実例集
    過去事例の間取り図・価格を知れる!昭和住宅の実例集
    昭和住宅の総合カタログです。
  • モデルハウスを見学する

    昭和住宅のモデルハウス画像1
    昭和住宅のモデルハウス画像2
    • 延床面積
      131.33m239.7坪)
    • 所在地
      福岡県北九州市八幡西区町上津役西4-2-16
    • 営業時間
      10:00~17:00(定休日:お盆、年末年始)
    • ナチュラル
    • 和モダン
    • 子育て
    • 外と繋がる
  • イベントに参加する

    昭和住宅のイベント画像
    【事前予約/八幡西区】無垢材の家は高いと諦めてない?予算内で叶える、心地よい暮らし発見プラン相談会
    • 設計・資金相談会
    • 完成見学会
    • 土地相談会
    開催日
    随時
    開催場所
    福岡県北九州市八幡西区町上津役西4-2-16

この建築実例の詳細情報

この建築実例を建てた店舗情報

住所 福岡県北九州市八幡西区町上津役西4-2-16
問い合わせ
093-612-0228
  • ※営業時間内の対応となります。

  • ※お問い合わせの際は「SUUMO(スーモ)を見て」とお伝え下さい。

ホームページ この会社のホームページへ

昭和住宅のコンテンツ一覧

お問い合わせ

カタログをもらう
施工実例集
昭和住宅のカタログ(過去事例の間取り図・価格を知れる!昭和住宅の実例集)
過去事例の間取り図・価格を知れる!昭和住宅の実例集
問合コード:1016380001
イベントに参加する
お問い合わせ先
093-612-0228
  • ※営業時間内の対応となります。

  • ※お問い合わせの際は「SUUMO(スーモ)を見て」とお伝え下さい。

  • 福岡県北九州市八幡西区町上津役西4-2-16

  • 定休日:なし

この会社のホームページへ

この会社が気になったら

カタログをもらう
施工実例集
昭和住宅のカタログ(過去事例の間取り図・価格を知れる!昭和住宅の実例集)
過去事例の間取り図・価格を知れる!昭和住宅の実例集
問合コード:1016380001
イベントに参加する

関連キーワード

この建築実例のその他の特徴
ページトップへ戻る