cocochi 藤岡萬建設 一級建築士事務所

cocochi 藤岡萬建設 一級建築士事務所

「デザイン×性能×コスト」HIGHSPEC定額制注文住宅
お気に入りに追加する
愛媛県  Mさん
【自然素材/平屋】家族が自然と集まる勾配天井の広々LDKがある平屋
cocochi 藤岡萬建設 一級建築士事務所 【自然素材/平屋】家族が自然と集まる勾配天井の広々LDKがある平屋の建築実例画像1
  • 本体価格
    1,890万円
    63.7万円/坪
  • 延床面積
    98.12m2 (29.6坪)
    敷地面積
    -
    家族構成
    夫婦(40代)+子ども1人
  • 竣工年月
    -
    工法
    木造軸組
この会社をもっと知りたくなったら
無料でお届け!まずはカタログ請求

施主Mさんのこだわり

アトリエ建築家と建てるひとつながりの効率的な動線

広々とした一体空間のLDKを、家の中心に据えることで、個室の南窓とLDの西窓から広がる庭が、さらに広がり感をもたらす。伸びやかにのぼる勾配天井の先に、北向きの高窓。一日中変わらない、穏やかな光をもたらしてくれる。玄関からシューズクローク、パントリーを通りキッチンまでの帰宅動線、キッチンからランドリー、ウォークインクローゼットまでの家事動線、日常の生活動線がスムーズにひとつながりの動線に。

広々とした一体空間のLDKを、家の中心に据えることで、個室の南窓とLDの西窓から広がる庭が、さらに広がり感をもたらす。伸びやかにのぼる勾配天井の先に、北向きの高窓。一日中変わらない、穏やかな光をもたらしてくれる。玄関からシューズクローク、パントリーを通りキッチンまでの帰宅動線、キッチンからランドリー、ウォークインクローゼットまでの家事動線、日常の生活動線がスムーズにひとつながりの動線に。

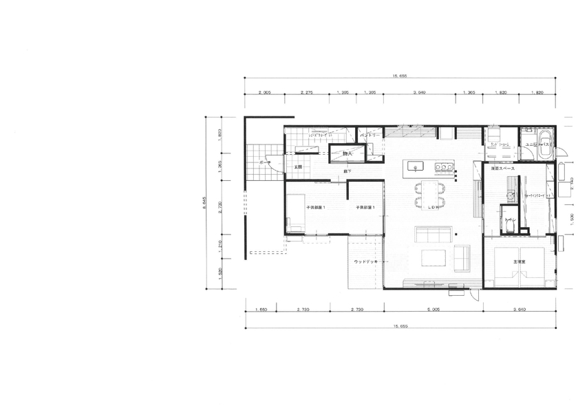
間取り図(3LDK)

1階
cocochi 藤岡萬建設 一級建築士事務所 【自然素材/平屋】家族が自然と集まる勾配天井の広々LDKがある平屋の間取り図(3LDK)1階
この会社をもっと知りたくなったら
無料でお届け!まずはカタログ請求

内外観ギャラリー

この会社をもっと知りたくなったら
無料でお届け!まずはカタログ請求

この会社の他の建築実例を見る

この建築実例が気になった方へおすすめ

  • この建築実例のカタログをもらう

    cocochi 藤岡萬建設 一級建築士事務所のカタログ画像
    総合カタログ
    cocochi brand concept book
    建築士と建てる心地よい住まいについてご紹介します。
  • イベントに参加する

    cocochi 藤岡萬建設 一級建築士事務所のイベント画像
    【無料相談】間取りと資金計画のセカンドオピニオン
    • 設計・資金相談会
    開催日
    2025/6/1(日)~随時
    開催場所
    愛媛県松山市水泥町896-6

この建築実例の詳細情報

この建築実例を建てた店舗情報

住所 愛媛県松山市水泥町896-6
問い合わせ
089-964-3164
  • ※営業時間内の対応となります。

  • ※お問い合わせの際は「SUUMO(スーモ)を見て」とお伝え下さい。

ホームページ この会社のホームページへ

cocochi 藤岡萬建設 一級建築士事務所のコンテンツ一覧

お問い合わせ

カタログをもらう
総合カタログ
cocochi 藤岡萬建設 一級建築士事務所のカタログ(cocochi brand concept book)
cocochi brand concept book
問合コード:1570520001
イベントに参加する
お問い合わせ先
089-964-3164
  • ※営業時間内の対応となります。

  • ※お問い合わせの際は「SUUMO(スーモ)を見て」とお伝え下さい。

  • 愛媛県松山市水泥町896-6

  • 定休日:水曜日

この会社のホームページへ

この会社が気になったら

カタログをもらう
総合カタログ
cocochi 藤岡萬建設 一級建築士事務所のカタログ(cocochi brand concept book)
cocochi brand concept book
問合コード:1570520001
イベントに参加する

関連キーワード

この建築実例のその他の特徴
ページトップへ戻る