ロゴスホーム

ロゴスホーム

北海道品質。北海道価格。高性能の家を適正価格で
お気に入りに追加する
北海道旭川市  Mさん
【北海道/旭川市/4LDK/ビルトインガレージ】アウトドア気分を楽しめる遊びごごろのある家
  • 本体価格
    -
  • 延床面積
    165.88m2 (50.1坪)
    敷地面積
    347.83m2 (105.2坪)
    家族構成
    M様 ご夫婦 +子ども2人
    竣工年月
    2019年3月
    工法
    2×4、2×6
  • 特徴
    シンプルモダン  |  こだわりの外観デザイン  |  料理を楽しむ  |  こだわりの内観デザイン  |  ヴィンテージ  |  ギャラリースペース  |  …
この会社をもっと知りたくなったら
無料でお届け!まずはカタログ請求

施主Mさんのこだわり

「庭でキャンプができるような家」を目指して

「施主Mさんのこだわり」以前は社宅暮らしだったから、狭かったし自分の好きなようにはできない。だから自分で家を建てるなら、帰りたくなる家にしようと決めていました。もともとアウトドアが好きだったので庭でテントを張ったり焼肉をしたりしたくて、目指したのは「キャンプ場に行かなくてもキャンプ気分を味わえる家」。それは絶対に叶えたい部分でした。「楽しい」がカタチになった趣味と遊び心いっぱいのレイアウトで、体を鍛えることが好きだったので、トレーニングルームをつくったり、… 続きを読む

「施主Mさんのこだわり」以前は社宅暮らしだったから、狭かったし自分の好きなようにはできない。だから自分で家を建てるなら、帰りたくなる家にしようと決めていました。もともとアウトドアが好きだったので庭でテントを張ったり焼肉をしたりしたくて、目指したのは「キャンプ場に行かなくてもキャンプ気分を味わえる家」。それは絶対に叶えたい部分でした。「楽しい」がカタチになった趣味と遊び心いっぱいのレイアウトで、体を鍛えることが好きだったので、トレーニングルームをつくったり、吹き抜けにはハンモックを付けてちゃんと乗っても遊んでも大丈夫なように施工していただきました。予算はちょっとかかってしまいましたが、やりたいことをカタチにしてもらってとても満足しています。

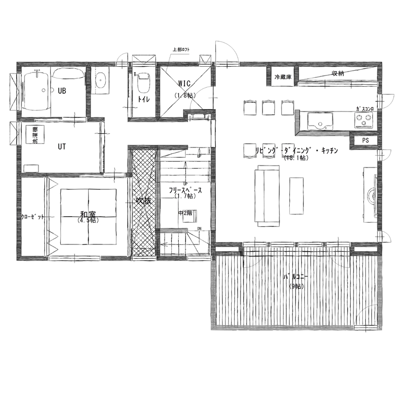
間取り図(4LDK)

一階平面図
ロゴスホーム 【北海道/旭川市/4LDK/ビルトインガレージ】アウトドア気分を楽しめる遊びごごろのある家の間取り図(4LDK)一階平面図

二階平面図
ロゴスホーム 【北海道/旭川市/4LDK/ビルトインガレージ】アウトドア気分を楽しめる遊びごごろのある家の間取り図(4LDK)二階平面図

この会社をもっと知りたくなったら
無料でお届け!まずはカタログ請求

内外観ギャラリー

この会社をもっと知りたくなったら
無料でお届け!まずはカタログ請求

この会社の他の建築実例を見る

この建築実例が気になった方へおすすめ

この建築実例の詳細情報

この建築実例を建てた店舗情報

店舗名 札幌北
住所 北海道札幌市北区屯田7条5丁目2-1
問い合わせ
011-775-4126
  • ※営業時間内の対応となります。

  • ※お問い合わせの際は「SUUMO(スーモ)を見て」とお伝え下さい。

ホームページ この会社のホームページへ

ロゴスホームのコンテンツ一覧

お問い合わせ

カタログをもらう
商品別カタログ
ロゴスホームのカタログ(【東海エリア】北国育ちの強い家[イエティ]コンセプトブック)
【東海エリア】北国育ちの強い家[イエティ]コンセプトブック
問合コード:9318990004
お問い合わせ先
0155-22-4126
  • ※営業時間内の対応となります。

  • ※お問い合わせの際は「SUUMO(スーモ)を見て」とお伝え下さい。

愛知
  • 愛知県名古屋市緑区古鳴海1丁目1番の1

この会社のホームページへ

この会社が気になったら

カタログをもらう
商品別カタログ
ロゴスホームのカタログ(【東海エリア】北国育ちの強い家[イエティ]コンセプトブック)
【東海エリア】北国育ちの強い家[イエティ]コンセプトブック
問合コード:9318990004

関連キーワード

この建築実例のその他の特徴
ページトップへ戻る