リアルホーム

リアルホーム

「こんなこと言いづらいな・・・」は禁止。予想以上の“解決策”があるかも
お気に入りに追加する
三重県鈴鹿市  Iさん
【平屋×約43坪×3LDK間取り】現役大工も納得の性能と価格。納得いくまでプランを練り直し、こだわりも実現
リアルホーム 【平屋×約43坪×3LDK間取り】現役大工も納得の性能と価格。納得いくまでプランを練り直し、こだわりも実現の建築実例画像1
  • 本体価格
    2,500万円2,999万円
    57.4万円68.9万円/坪
  • 延床面積
    144.07m2 (43.5坪)
    敷地面積
    740.00m2 (223.8坪)
    家族構成
    夫婦
  • 竣工年月
    2019年7月
    工法
    木造軸組
この会社をもっと知りたくなったら
無料でお届け!まずはカタログ請求

施主Iさんのこだわり

性能とスタッフの親身な人柄が決め手。「ここなら信頼できると思いました」

30社以上の会社で話を聞き、検討を重ねたIさん。そんなIさんが選んだのがリアルホームだ。大工の息子さんと共に検討し、最終的に同社の構造や住宅性能に惹かれて決断した。社長やスタッフの人柄にも惹かれ、「社長の木へのこだわりや、良心的で親身になってくれるスタッフの人柄に、『ここなら信頼できる』と思いました。また、OB宅も見学させてもらい、気に入ったところを取り入れるとともに、建てた後も安心だと確信しました」とIさん。長期優良住宅よりも省エネレベルの高い低炭素住宅… 続きを読む

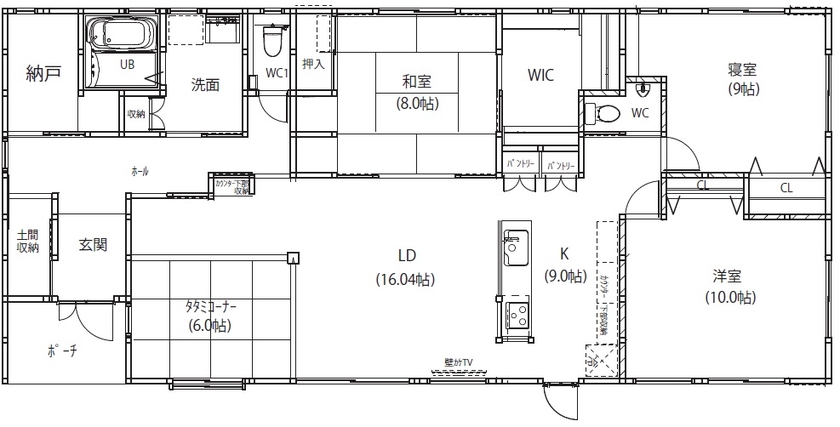
30社以上の会社で話を聞き、検討を重ねたIさん。そんなIさんが選んだのがリアルホームだ。大工の息子さんと共に検討し、最終的に同社の構造や住宅性能に惹かれて決断した。社長やスタッフの人柄にも惹かれ、「社長の木へのこだわりや、良心的で親身になってくれるスタッフの人柄に、『ここなら信頼できる』と思いました。また、OB宅も見学させてもらい、気に入ったところを取り入れるとともに、建てた後も安心だと確信しました」とIさん。長期優良住宅よりも省エネレベルの高い低炭素住宅に認定され、暑い夏でも快適だそう。プランも納得いくまで何度も練り直し、当初の2階建ての計画から平屋へ変更。タタミコーナーや趣味の部屋、たっぷりの収納スペースなど様々なこだわりを叶えた。

間取り図(3LDK)

1階間取図
リアルホーム 【平屋×約43坪×3LDK間取り】現役大工も納得の性能と価格。納得いくまでプランを練り直し、こだわりも実現の間取り図(3LDK)1階間取図
この会社をもっと知りたくなったら
無料でお届け!まずはカタログ請求

内外観ギャラリー

この会社をもっと知りたくなったら
無料でお届け!まずはカタログ請求

この会社の他の建築実例を見る

この建築実例が気になった方へおすすめ

  • この建築実例のカタログをもらう

    リアルホームのカタログ画像
    総合カタログ
    ONLY ONE HOME
    無個性であることが個性。リアルホームのカタログを一度ご覧ください。

この建築実例の詳細情報

この建築実例を建てた店舗情報

店舗名 本社
住所 三重県四日市市安島一丁目7-12 向陽2ビル1階
問い合わせ
059-352-9920
  • ※営業時間内の対応となります。

  • ※お問い合わせの際は「SUUMO(スーモ)を見て」とお伝え下さい。

ホームページ この会社のホームページへ

リアルホームのコンテンツ一覧

お問い合わせ

カタログをもらう
総合カタログ
リアルホームのカタログ(ONLY ONE HOME)
ONLY ONE HOME
問合コード:1453080001
お問い合わせ先
059-352-9920
  • ※営業時間内の対応となります。

  • ※お問い合わせの際は「SUUMO(スーモ)を見て」とお伝え下さい。

本社
  • 三重県四日市市安島一丁目7-12 向陽2ビル1階

  • 定休日:年末年始

この会社のホームページへ

この会社が気になったら

カタログをもらう
総合カタログ
リアルホームのカタログ(ONLY ONE HOME)
ONLY ONE HOME
問合コード:1453080001

関連キーワード

この建築実例のその他の特徴
ページトップへ戻る