アートホーム

アートホーム

家は器。家は家族が生活する器である。決して主張しすぎてはいけない。
お気に入りに追加する
北海道札幌市  Sさん
【A-Prot】|3360万円/札幌市/3LDK間取図|季節ごとに移ろう借景を愉しむ、2階リビングの住まい
アートホーム 【A-Prot】|3360万円/札幌市/3LDK間取図|季節ごとに移ろう借景を愉しむ、2階リビングの住まいの建築実例画像1
  • 本体価格
    3,360万円
    93.2万円/坪
  • 延床面積
    119.23m2 (36.0坪)
    敷地面積
    443.18m2 (134.0坪)
    家族構成
    夫婦+子ども1人
  • 竣工年月
    -
    工法
    木造軸組
この会社をもっと知りたくなったら
無料でお届け!まずはカタログ請求

施主Sさんのこだわり

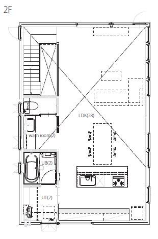
2階リビングから季節ごとの借景を愉しめる家づくり

借景を愉しむ為2階にリビングを配置した、季節ごとに圧巻の景色と共に暮らすことのできる家。キッチン・シューズクローク等インテリアになじむ収納を確保しており見た目も機能性もある。リビングとなりにあるUTとの仕切りの為に設置したルーバーは程よく遮り、奥行きを感じられ、さらに、デザインとしても良いアクセントになっている。2mの大きなダイニングテーブルは家族が集まる大切な場所。照明の高さや配置にもこだわりを持たせた。

借景を愉しむ為2階にリビングを配置した、季節ごとに圧巻の景色と共に暮らすことのできる家。キッチン・シューズクローク等インテリアになじむ収納を確保しており見た目も機能性もある。リビングとなりにあるUTとの仕切りの為に設置したルーバーは程よく遮り、奥行きを感じられ、さらに、デザインとしても良いアクセントになっている。2mの大きなダイニングテーブルは家族が集まる大切な場所。照明の高さや配置にもこだわりを持たせた。

間取り図(3LDK)

1階
アートホーム 【A-Prot】|3360万円/札幌市/3LDK間取図|季節ごとに移ろう借景を愉しむ、2階リビングの住まいの間取り図(3LDK)1階
2階
アートホーム 【A-Prot】|3360万円/札幌市/3LDK間取図|季節ごとに移ろう借景を愉しむ、2階リビングの住まいの間取り図(3LDK)2階
この会社をもっと知りたくなったら
無料でお届け!まずはカタログ請求

内外観ギャラリー

この会社をもっと知りたくなったら
無料でお届け!まずはカタログ請求

この会社の他の建築実例を見る

この建築実例が気になった方へおすすめ

この建築実例の詳細情報

この建築実例を建てた店舗情報

店舗名 札幌支店
住所 北海道札幌市南区南30条西8丁目5-1
問い合わせ
011-581-8686
  • ※営業時間内の対応となります。

  • ※お問い合わせの際は「SUUMO(スーモ)を見て」とお伝え下さい。

ホームページ この会社のホームページへ

アートホームのコンテンツ一覧

お問い合わせ

カタログをもらう
総合カタログ
アートホームのカタログ(【アートホーム】実例やミニプロトなど商品のカタログ。)
【アートホーム】実例やミニプロトなど商品のカタログ。
問合コード:1313520001
イベントに参加する

この会社が気になったら

カタログをもらう
総合カタログ
アートホームのカタログ(【アートホーム】実例やミニプロトなど商品のカタログ。)
【アートホーム】実例やミニプロトなど商品のカタログ。
問合コード:1313520001
イベントに参加する

関連キーワード

この建築実例のその他の特徴
3人家族  |  和風モダン  |  おしゃれ  |  開放感  |  重厚感  |  落ち着き  |  窓が多い
ページトップへ戻る