SUDOホーム 須藤建設

SUDOホーム 須藤建設

北海道生まれ関東育ちの性能と自由な発想で理想の暮らしを実現
お気に入りに追加する
千葉県千葉市  Gさん
【3000万円台/中庭/アウトドアリビング】細長い敷地を活かした心地よい『間』のスペースが暮らしを豊かに
SUDOホーム 須藤建設 【3000万円台/中庭/アウトドアリビング】細長い敷地を活かした心地よい『間』のスペースが暮らしを豊かにの建築実例画像1
  • 本体価格
    3,000万円3,499万円
    79.2万円92.4万円/坪
  • 延床面積
    125.28m2 (37.8坪)
    敷地面積
    175.27m2 (53.0坪)
    家族構成
    -
  • 竣工年月
    2018年4月
    工法
    木造軸組
この会社をもっと知りたくなったら
無料でお届け!まずはカタログ請求

施主Gさんのこだわり

インドアガーデンやバルコニーも暮らしの一部に。外から想像できない豊かな空間が展開

敷地は細長く不整形な土地。その敷地形状に合わせて細長く設計された建物。デメリットになりそうな細長さを逆手にとって、各居室の間に「インドアガーデン」や「中庭のような2Fバルコニー」といった、心地よい「間のスペース」を配置。内と外の中間領域のようにデザインすることで、外部と内部が連続してつながっているように感じられ、敷地と建物が一体となり実際の床面積以上の広さを感じられるプランとなっている。「限られた敷地でも開放感のある住まいにしたい」「住宅地でもプライバシー… 続きを読む

敷地は細長く不整形な土地。その敷地形状に合わせて細長く設計された建物。デメリットになりそうな細長さを逆手にとって、各居室の間に「インドアガーデン」や「中庭のような2Fバルコニー」といった、心地よい「間のスペース」を配置。内と外の中間領域のようにデザインすることで、外部と内部が連続してつながっているように感じられ、敷地と建物が一体となり実際の床面積以上の広さを感じられるプランとなっている。「限られた敷地でも開放感のある住まいにしたい」「住宅地でもプライバシーを守りながらのびのび暮らしたい」といった要望にも、期待以上の完成度で応えた見事な提案だ。インドアガーデンや中庭は、室内のプライバシーを守り、光や風を取り込む役割を果たしながら、それ自体も外からの視線を気にせず過ごせる気持ちのよい場所として工夫されている。室内は、隣家に挟まれ、人通りのある通りに面しているとは思えない開放感とリゾートのような心地よさに満たされている。

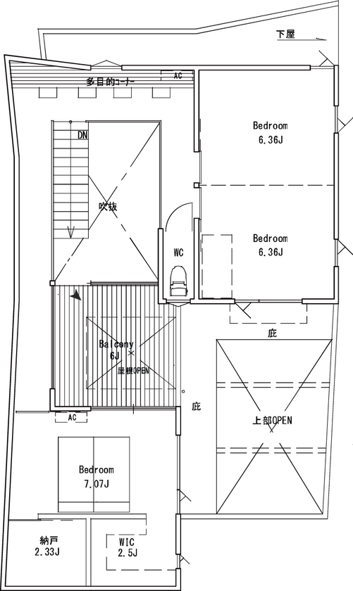
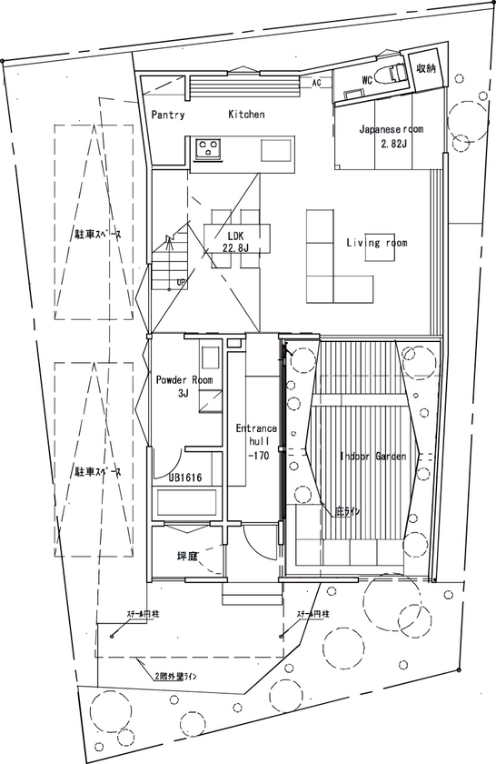
間取り図(2LDK)

1階
SUDOホーム 須藤建設 【3000万円台/中庭/アウトドアリビング】細長い敷地を活かした心地よい『間』のスペースが暮らしを豊かにの間取り図(2LDK)1階
2階
SUDOホーム 須藤建設 【3000万円台/中庭/アウトドアリビング】細長い敷地を活かした心地よい『間』のスペースが暮らしを豊かにの間取り図(2LDK)2階
この会社をもっと知りたくなったら
無料でお届け!まずはカタログ請求

内外観ギャラリー

この会社をもっと知りたくなったら
無料でお届け!まずはカタログ請求

この会社の他の建築実例を見る

この建築実例が気になった方へおすすめ

この建築実例の詳細情報

この建築実例を建てた店舗情報

住所 千葉県千葉市緑区あすみが丘8-4-50
問い合わせ
0120-310-207
  • ※営業時間内の対応となります。

  • ※お問い合わせの際は「SUUMO(スーモ)を見て」とお伝え下さい。

ホームページ この会社のホームページへ

SUDOホーム 須藤建設のコンテンツ一覧

お問い合わせ

カタログをもらう
総合カタログ
SUDOホーム 須藤建設のカタログ(SUDOホーム 須藤建設のカタログ)
SUDOホーム 須藤建設のカタログ
問合コード:1156240001
お問い合わせ先
0120-310-207
  • ※営業時間内の対応となります。

  • ※お問い合わせの際は「SUUMO(スーモ)を見て」とお伝え下さい。

  • 千葉県千葉市緑区あすみが丘8-4-50

  • 定休日:水曜日、祝日

この会社のホームページへ

この会社が気になったら

カタログをもらう
総合カタログ
SUDOホーム 須藤建設のカタログ(SUDOホーム 須藤建設のカタログ)
SUDOホーム 須藤建設のカタログ
問合コード:1156240001

関連キーワード

ページトップへ戻る