"20251207142450:H:0" "20251207142450:H:0" "20251207142450:H:0"
この物件にお問い合わせ
お問い合わせの内容を選択してください
03-6277-5306
(株)リアルビジョン渋谷桜丘支店
営業時間:10:00~19:00
定休日:無し
お電話の際は、SUUMOを見たとお伝えいただくとスムーズです。

部屋の特徴・設備

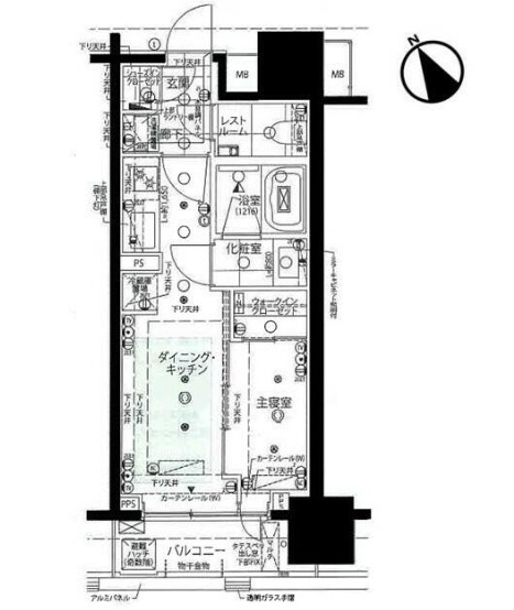
  • バストイレ別、バルコニー、エアコン、クロゼット、フローリング、TVインターホン、浴室乾燥機、オートロック、室内洗濯置、シューズボックス、システムキッチン、追焚機能浴室、温水洗浄便座、エレベーター、洗面所独立、2口コンロ、駐輪場、宅配ボックス、CATV、光ファイバー、BS・CS、防犯カメラ、分譲賃貸、全居室洋室、ウォークインクロゼット、保証人不要、バイク置場、2沿線利用可、ディンプルキー、床暖房、食器洗乾燥機、ダブルロックキー、築2年以内、24時間換気システム、駅徒歩10分以内、24時間ゴミ出し可、敷地内ごみ置き場、東南向き、都市ガス、シューズWIC、IT重説 対応物件

物件概要

情報の見方

間取り詳細 - 構造 鉄筋コン
階建 9階/地下1地上14階建 築年月 2022年11月
エネルギー
消費性能
- 断熱性能 -
目安光熱費
  • -
損保 駐車場 -
入居 '25年12月中旬 取引態様 仲介
条件 - 取り扱い店舗
物件コード
-
SUUMO
物件コード
100475272111 総戸数 -
情報更新日 2025/12/04 次回更新予定日 2025/12/12
保証会社
  • 保証会社利用必 初回保証料:総賃料の50%・年間保証料10000円
ほか諸費用
  • 24時間サポート16500円
備考
  • 巡回管理/■更新料:新賃料1ヶ月 ■駐輪場・バイク置場に関してはお問い合わせください

情報掲載元物件はこちら
この物件にお問い合わせ
お問い合わせの内容を選択してください
(株)リアルビジョン渋谷桜丘支店
営業時間:10:00~19:00/定休日:無し

店舗・物件ブランドのアピールポイント

この物件を取り扱う店舗

(株)リアルビジョン渋谷桜丘支店 取引態様:仲介
免許番号: 東京都知事(4)第86601号
  • 女性スタッフ
  • 開店10年以上
  • 年中無休
  • 賃貸保証対応
  • 保証人不要相談可
☆渋谷エリアに3店舗☆創業より都心5区・城南エリアに特化し、売買・賃貸・管理を行っており専任物件多数あります!
東京都渋谷区桜丘町 29-26 エクセレンスビルディング桜丘町301
10:00~19:00
定休日: 無し
JR山手線/渋谷駅 歩6分
京王井の頭線/神泉駅 歩8分
東急東横線/代官山駅 歩12分
03-6277-5306
  • 部屋情報
  • 地図・周辺環境
  • エリアの口コミ

【掲載物件情報について】

・SUUMOは「自ら居住するための住宅」をお探しの方に向けたポータルサイトです。契約者以外の方が使用する(例:第三者に宿泊させる等)ことを目的としたお問合せはご遠慮ください


・SUUMOではユーザーの皆様に最も信頼されるサイトを目指して、物件情報の精度向上に努めております。SUUMOに掲載されている物件情報について「事実と異なる点や誤解を招く表現がある」「成約済の物件が掲載されている」などにお気づきになりましたら、以下のページからご連絡ください

その他の情報

(株)リアルビジョン渋谷桜丘支店のその他取り扱い物件

全物件を一覧表示する

最寄駅から探す

最寄駅の沿線から探す

関連エリアから不動産情報を探す

ページトップへ戻る

お気に入りに追加しました。