"20251207114721:H:0" "20251207114721:H:0" "20251207114721:H:0"
この物件にお問い合わせ
お問い合わせの内容を選択してください
03-6424-4539
(株)暮らすティ
営業時間:10:00~19:00
定休日:水曜
お電話の際は、SUUMOを見たとお伝えいただくとスムーズです。
(株)暮らすティ
TEL: 03-6424-4539
※映像に誤りがある場合は こちら

パノラマ

部屋の特徴・設備

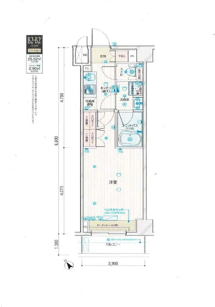
  • バストイレ別、エアコン、クロゼット、フローリング、TVインターホン、浴室乾燥機、オートロック、室内洗濯置、システムキッチン、温水洗浄便座、エレベーター、駐輪場、宅配ボックス、照明付、分譲賃貸、バイク置場、ディンプルキー、CS、ネット専用回線、24時間換気システム、3駅以上利用可、3沿線以上利用可、駅徒歩5分以内、24時間ゴミ出し可、敷地内ごみ置き場、南西向き、セキュリティ会社加入済、都市ガス、シューズWIC、BS

物件概要

情報の見方

間取り詳細 - 構造 鉄筋コン
階建 3階/6階建 築年月 2017年3月
エネルギー
消費性能
- 断熱性能 -
目安光熱費
  • -
損保 2万円2年 駐車場 敷地内12000円
入居 相談 取引態様 仲介
条件 - 取り扱い店舗
物件コード
1595195
SUUMO
物件コード
100475325458 総戸数 55戸
情報更新日 2025/12/06 次回更新予定日 2025/12/14
バルコニー面積
  • 2.9m2
契約期間
  • 普通借家 2年
ほか初期費用
  • 合計3.52万円(内訳:鍵交換代3.52万円)
ほか諸費用
  • 更新料 新賃料1.00ヶ月分 室内清掃費用 45000円

情報掲載元物件はこちら
この物件にお問い合わせ
お問い合わせの内容を選択してください
(株)暮らすティ
営業時間:10:00~19:00/定休日:水曜

店舗・物件ブランドのアピールポイント

この物件を取り扱う店舗

(株)暮らすティ 取引態様:仲介
免許番号: 東京都知事(1)第106353号 / (公社)全日本不動産協会東京都本部会員 / (公社)首都圏不動産公正取引協議会加盟
  • 駅徒歩3分以内
  • 女性スタッフ
  • 保証人不要相談可
☆お部屋探しのことなら暮らすティへご相談下さい☆
東京都大田区蒲田5-16-8 鵠沼ビル403
10:00~19:00
定休日: 水曜
JR京浜東北線/蒲田駅 歩1分
京急本線/京急蒲田駅 歩8分
東急池上線/蓮沼駅 歩12分
03-6424-4539
  • 部屋情報
  • 地図・周辺環境
  • エリアの口コミ

【掲載物件情報について】

・SUUMOは「自ら居住するための住宅」をお探しの方に向けたポータルサイトです。契約者以外の方が使用する(例:第三者に宿泊させる等)ことを目的としたお問合せはご遠慮ください


・SUUMOではユーザーの皆様に最も信頼されるサイトを目指して、物件情報の精度向上に努めております。SUUMOに掲載されている物件情報について「事実と異なる点や誤解を招く表現がある」「成約済の物件が掲載されている」などにお気づきになりましたら、以下のページからご連絡ください

その他の情報

(株)暮らすティのその他取り扱い物件

最寄駅から探す

最寄駅の沿線から探す

関連エリアから不動産情報を探す

ページトップへ戻る

お気に入りに追加しました。