"20251208090700:H:0" "20251208090700:H:0" "20251208090700:H:0"

ザ・パークハビオ神楽坂レジデンスSouth 206号室

この物件にお問い合わせ
お問い合わせの内容を選択してください
03-6271-4669
(株)ユウキ・ホーム麻布十番網代公園店
営業時間:9:00~20:30
定休日:なし
お電話の際は、SUUMOを見たとお伝えいただくとスムーズです。

部屋の特徴・設備

  • バストイレ別、バルコニー、エアコン、クロゼット、フローリング、TVインターホン、浴室乾燥機、オートロック、室内洗濯置、シューズボックス、システムキッチン、南向き、追焚機能浴室、温水洗浄便座、エレベーター、洗面化粧台、2口コンロ、駐輪場、宅配ボックス、即入居可、防犯カメラ、ペット相談、IHクッキングヒーター、オートバス、保証人不要、バイク置場、2沿線利用可、ネット使用料不要、フロントサービス、南面リビング、2駅利用可、3駅以上利用可、3沿線以上利用可、駅徒歩10分以内、24時間ゴミ出し可、敷地内ごみ置き場、都市ガス、南面バルコニー、シューズWIC、保証会社利用可

物件概要

情報の見方

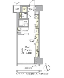
間取り詳細 洋15 構造 鉄筋コン
階建 2階/10階建 築年月 2025年6月
エネルギー
消費性能
- 断熱性能 -
目安光熱費
  • -
損保 3.2万円2年 駐車場 -
入居 取引態様 仲介
条件 単身者可/ペット相談/事務所利用相談 取り扱い店舗
物件コード
aaaa 534364
SUUMO
物件コード
100472829103 総戸数 -
情報更新日 2025/12/07 次回更新予定日 2025/12/22
敷金積み増し
  • ペット飼育の場合敷金2ヶ月(総額)
契約期間
  • 普通借家 2年
保証会社
  • 保証会社利用必 初回保証料:賃料等の50% 詳細はお問い合わせください
ほか初期費用
  • 合計1.98万円(内訳:M-REALプレミアム会費(2年)1.98万円)
備考
  • 常駐管理/退去時清掃実費 ペット・SOHO相談可:敷金1ヶ月積み増し※詳細はお問い合わせください 駐輪場・バイク置場※詳細はお問い合わせください

情報掲載元物件はこちら
この物件にお問い合わせ
お問い合わせの内容を選択してください
03-6271-4669
(株)ユウキ・ホーム麻布十番網代公園店
営業時間:9:00~20:30/定休日:なし

店舗・物件ブランドのアピールポイント

この物件を取り扱う店舗

(株)ユウキ・ホーム麻布十番網代公園店 取引態様:仲介
免許番号: 東京都知事(5)第76214号 / (公社)東京都宅地建物取引業協会会員 / (公社)首都圏不動産公正取引協議会加盟
  • 駅徒歩3分以内
  • 女性スタッフ
  • 開店10年以上
  • 売買取扱あり
  • 外国語対応可
麻布十番に3店舗!取扱実績 麻布十番No.1 当社のみ取扱いの「専任」情報多数!他の追随を赦さない「地元力」
東京都港区麻布十番2-19-10 桂麻布十番ビル1階
9:00~20:30
定休日: なし
東京メトロ南北線/麻布十番駅 歩2分
都営大江戸線/麻布十番駅 歩2分
03-6271-4669
  • 部屋情報
  • 地図・周辺環境
  • エリアの口コミ

【掲載物件情報について】

・SUUMOは「自ら居住するための住宅」をお探しの方に向けたポータルサイトです。契約者以外の方が使用する(例:第三者に宿泊させる等)ことを目的としたお問合せはご遠慮ください


・SUUMOではユーザーの皆様に最も信頼されるサイトを目指して、物件情報の精度向上に努めております。SUUMOに掲載されている物件情報について「事実と異なる点や誤解を招く表現がある」「成約済の物件が掲載されている」などにお気づきになりましたら、以下のページからご連絡ください

その他の情報

(株)ユウキ・ホーム麻布十番網代公園店のその他取り扱い物件

全物件を一覧表示する

最寄駅から探す

最寄駅の沿線から探す

関連エリアから不動産情報を探す

ページトップへ戻る

お気に入りに追加しました。