"20251210012536:H:0" "20251210012536:H:0" "20251210012536:H:0"
この物件にお問い合わせ
お問い合わせの内容を選択してください
0800-1700853
【通話料無料】
ハウスコム西東京(株)八王子駅前店
営業時間:AM10:00~PM6:00
定休日:年末年始除く
お電話の際は、SUUMOを見たとお伝えいただくとスムーズです。
ハウスコム西東京(株)八王子駅前店
TEL: 0800-1700853【通話料無料】
※映像に誤りがある場合は こちら

部屋の特徴・設備

  • バストイレ別、バルコニー、エアコン、ガスコンロ対応、フローリング、シャワー付洗面台、TVインターホン、浴室乾燥機、オートロック、室内洗濯置、シューズボックス、システムキッチン、追焚機能浴室、温水洗浄便座、脱衣所、エレベーター、洗面所独立、洗面化粧台、2口コンロ、駐輪場、宅配ボックス、外壁タイル張り、即入居可、礼金不要、閑静な住宅地、敷金不要、防犯カメラ、独立型キッチン、ペット相談、分譲賃貸、オートバス、保証人不要、24時間緊急通報システム、玄関ホール、2沿線利用可、ディンプルキー、駅まで平坦、ネット使用料不要、緑豊かな住宅地、ダブルロックキー、築2年以内、24時間換気システム、平坦地、築3年以内、浴室未使用、トイレ未使用、始発駅、2駅利用可、3駅以上利用可、3沿線以上利用可、駅徒歩5分以内、駅徒歩10分以内、敷地内ごみ置き場、築5年以内、セキュリティ会社加入済、キッチン未使用、都市ガス、洗面所にドア、敷金・礼金不要、IT重説 対応物件

物件概要

情報の見方

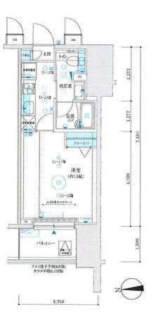
間取り詳細 洋7.5 K2.0 構造 鉄筋コン
階建 9階/13階建 築年月 2025年9月
エネルギー
消費性能
- 断熱性能 -
目安光熱費
  • -
損保 駐車場 近隣300m27500円
入居 取引態様 仲介
条件 ペット相談/事務所利用不可 取り扱い店舗
物件コード
HC2-5149280-905-0078
SUUMO
物件コード
100462093423 総戸数 100戸
情報更新日 2025/12/08 次回更新予定日 2025/12/23
保証会社
  • 保証会社利用必 初回保証料50%~
ほか初期費用
  • 合計0.06万円(内訳:書類作成費0.055万円)
ほか諸費用
  • 更新料 新賃料1.00ヶ月分 駐輪場330円/月
備考
  • 室内は同ハウスメーカーの参考写真となります。 火災保険15000円 ペット飼育時敷金積み増し料金(償却)有り・家賃変更あり

情報掲載元物件はこちら
この物件にお問い合わせ
お問い合わせの内容を選択してください
0800-1700853 【通話料無料】
ハウスコム西東京(株)八王子駅前店
営業時間:AM10:00~PM6:00/定休日:年末年始除く

店舗・物件ブランドのアピールポイント

この物件を取り扱う店舗

ハウスコム西東京(株)八王子駅前店 取引態様:仲介
免許番号: 東京都知事(1)第108225号 / (公財)日本賃貸住宅管理協会会員 / (公社)首都圏不動産公正取引協議会加盟
  • 駅徒歩3分以内
  • 女性スタッフ
  • 年中無休
  • 開店10年以上
  • 多店舗展開
◆◆八王子エリアのお部屋探しは【ハウスコム八王子駅前店】へ◆◆
東京都八王子市旭町 2-12 JR八王子駅北口サンドラッグビル6階
AM10:00~PM6:00
定休日: 年末年始除く
JR中央線/八王子駅 歩1分
京王線/京王八王子駅 歩5分
0800-1700853
  • 部屋情報
  • 地図・周辺環境
  • エリアの口コミ

【掲載物件情報について】

・SUUMOは「自ら居住するための住宅」をお探しの方に向けたポータルサイトです。契約者以外の方が使用する(例:第三者に宿泊させる等)ことを目的としたお問合せはご遠慮ください


・SUUMOではユーザーの皆様に最も信頼されるサイトを目指して、物件情報の精度向上に努めております。SUUMOに掲載されている物件情報について「事実と異なる点や誤解を招く表現がある」「成約済の物件が掲載されている」などにお気づきになりましたら、以下のページからご連絡ください

その他の情報

ハウスコム西東京(株)八王子駅前店のその他取り扱い物件

全物件を一覧表示する

最寄駅から探す

最寄駅の沿線から探す

関連エリアから不動産情報を探す

ページトップへ戻る

お気に入りに追加しました。