"20251207104257:H:0" "20251207104257:H:0" "20251207104257:H:0"

パークアクシス品川天王洲アイル 1101号室

この物件にお問い合わせ
お問い合わせの内容を選択してください
03-6685-8161
(株)タイセイ・ハウジー大森営業所
営業時間:10:00~18:00
定休日:水曜日
お電話の際は、SUUMOを見たとお伝えいただくとスムーズです。

部屋の特徴・設備

  • バストイレ別、バルコニー、エアコン、フローリング、浴室乾燥機、オートロック、室内洗濯置、システムキッチン、追焚機能浴室、エレベーター、洗面所独立、宅配ボックス、CATV、ペット相談、グリル付、ウォークインクロゼット、バイク置場、CS、フリーレント、楽器相談、敷地内ごみ置き場、日勤管理、BS

物件概要

情報の見方

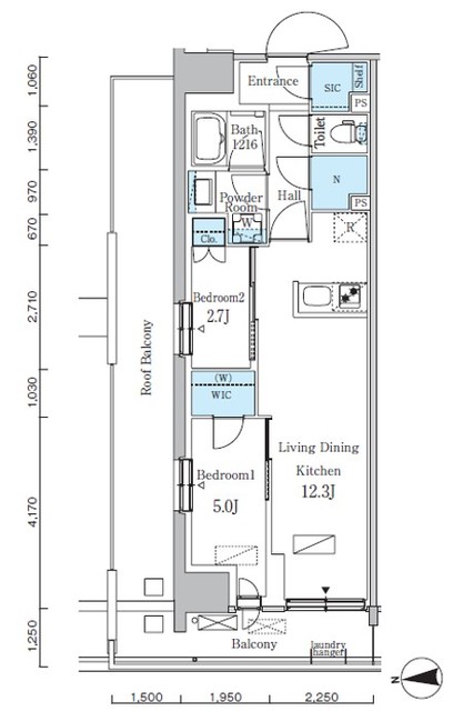
間取り詳細 - 構造 鉄筋コン
階建 11階/14階建 築年月 2025年3月
エネルギー
消費性能
- 断熱性能 -
目安光熱費
  • -
損保 駐車場 -
入居 取引態様 仲介
条件 ペット相談/楽器相談/事務所利用不可/フリーレント2ヶ月 取り扱い店舗
物件コード
885474
SUUMO
物件コード
100473391011 総戸数 -
情報更新日 2025/12/06 次回更新予定日 2025/12/14
バルコニー面積
  • 24m2
契約期間
  • 定期借家 2年
保証会社
  • 保証会社利用必 初回保証委託料(最低20 000円):月額賃料等の50%、 2年目以降:9 600円/年
ほか初期費用
  • 合計9.43万円(内訳:室内清掃費9.4248万円)
ほか諸費用
  • 口座振替事務手数料 月額110円
備考
  • 通勤管理/お部屋探しはタイセイ・ハウジー大森営業所へ お気軽にお問合せ下さい!

情報掲載元物件はこちら
この物件にお問い合わせ
お問い合わせの内容を選択してください
(株)タイセイ・ハウジー大森営業所
営業時間:10:00~18:00/定休日:水曜日

この物件を取り扱う店舗

(株)タイセイ・ハウジー大森営業所 取引態様:仲介
免許番号: 国土交通大臣(10)第3440号 / (公社)東京都宅地建物取引業協会会員 / (公社)首都圏不動産公正取引協議会加盟
  • 駅徒歩3分以内
  • 社宅・寮対応
  • 法人契約取扱
  • 女性スタッフ
  • 引越会社紹介
タイセイ・ハウジーは不動産の総合力でお客様のご要望にお応えします。
東京都品川区南大井6-28-1
10:00~18:00
定休日: 水曜日
JR京浜東北線/大森駅 歩1分
京急本線/大森海岸駅 歩7分
03-6685-8161
  • 部屋情報
  • 地図・周辺環境
  • エリアの口コミ

【掲載物件情報について】

・SUUMOは「自ら居住するための住宅」をお探しの方に向けたポータルサイトです。契約者以外の方が使用する(例:第三者に宿泊させる等)ことを目的としたお問合せはご遠慮ください


・SUUMOではユーザーの皆様に最も信頼されるサイトを目指して、物件情報の精度向上に努めております。SUUMOに掲載されている物件情報について「事実と異なる点や誤解を招く表現がある」「成約済の物件が掲載されている」などにお気づきになりましたら、以下のページからご連絡ください

その他の情報

(株)タイセイ・ハウジー大森営業所のその他取り扱い物件

全物件を一覧表示する

最寄駅から探す

最寄駅の沿線から探す

関連エリアから不動産情報を探す

ページトップへ戻る

お気に入りに追加しました。